3غرفة منزل في Sieghartskirchen, Austria رقم 198502
$ 583 032
$ 6 269 لكلّ متر مربّع؛
3
غرف
1
الحمامات
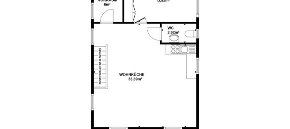
93
غرف المعيشة, م2
Sieghartskirchen, Austria
الإعدادات
غرف
3
الحمامات
1
غرف المعيشة, م2
93
ID
198502
نوع
منزل
مساحة الأرض, م2
3068
موعد الانتهاء
IV ربع, 1989
المميزات
المميزات
- سطح
المرافق الداخلية
- غرفة تخزين
المرافق الخارجية
- موقف السيارات













































