3 غرف نوم منزل في Petronell-Carnuntum, Austria رقم 212670
$ 1 032 328
$ 2 555 لكلّ متر مربّع؛
4
غرف
3
غرف نوم
3
الحمامات
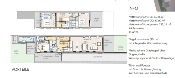
404
غرف المعيشة, م2
Petronell-Carnuntum, Austria
الإعدادات
غرف
4
غرف نوم
3
الحمامات
3
غرف المعيشة, م2
404
ID
212670
نوع
منزل
موعد الانتهاء
IV ربع, 2024
المميزات
المميزات
- سطح
المرافق الداخلية
- مرآب
المرافق الخارجية
- موقف السيارات
- حديقة










