7غرفة منزل في Grosssteinbach, Austria رقم 214411
$ 431 701
$ 1 799 لكلّ متر مربّع؛
7
غرف
2
الحمامات
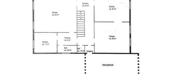
240
غرف المعيشة, م2
Grosssteinbach, Austria
الإعدادات
غرف
7
الحمامات
2
غرف المعيشة, م2
240
ID
214411
نوع
منزل
مساحة الأرض, م2
1227
موعد الانتهاء
IV ربع, 1912
المميزات
المرافق الداخلية
- غرفة تخزين
المرافق الخارجية
- موقف السيارات
- حديقة





















