7 غرف نوم تاون هاوس في Innsbruck-Stadt, Austria رقم 222602
$ 1 501 818
$ 9 445 لكلّ متر مربّع؛
9
غرف
7
غرف نوم
3
الحمامات
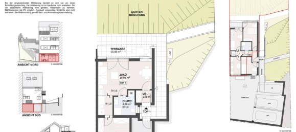
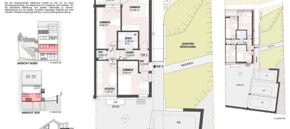
159
غرف المعيشة, م2
Innsbruck-Stadt, Austria
الإعدادات
غرف
9
غرف نوم
7
الحمامات
3
غرف المعيشة, م2
159
ID
222602
العنوان
Felseckstraße
نوع
تاون هاوس
مساحة الأرض, م2
303
المميزات
المميزات
- سطح
المرافق الداخلية
- مرآب
المرافق الخارجية
- موقف السيارات
- حديقة




