4غرفة منزل ذو طابقين في Wenns, Austria رقم 225761
$ 457 119
$ 4 156 لكلّ متر مربّع؛
4
غرف
1
الحمامات
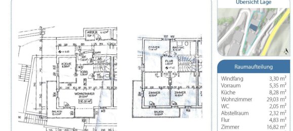
110
غرف المعيشة, م2
Wenns, Austria
الإعدادات
غرف
4
الحمامات
1
غرف المعيشة, م2
110
ID
225761
نوع
منزل ذو طابقين
موعد الانتهاء
IV ربع, 1995
المميزات
المميزات
- شرفة
المرافق الداخلية
- مرآب
المرافق الخارجية
- موقف السيارات










