4غرفة منزل في Koflach, Austria رقم 230198
$ 290 507
$ 2 046 لكلّ متر مربّع؛
4
غرف
2
الحمامات
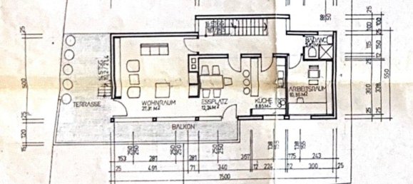
142
غرف المعيشة, م2
Koflach, Austria
الإعدادات
غرف
4
الحمامات
2
غرف المعيشة, م2
142
ID
230198
نوع
منزل
مساحة الأرض, م2
2994
موعد الانتهاء
IV ربع, 1966
المميزات
المميزات
- سطح
المرافق الداخلية
- مرآب
المرافق الخارجية
- موقف السيارات
- حديقة





























