2 غرف نوم بانتهاوس في Fieberbrunn, Austria رقم 240666
$ 650 516
$ 9 709 لكلّ متر مربّع؛
3
غرف
2
غرف نوم
2
الحمامات
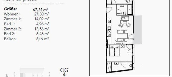
67
غرف المعيشة, م2
Fieberbrunn, Austria
الإعدادات
غرف
3
غرف نوم
2
الحمامات
2
غرف المعيشة, م2
67
ID
240666
العنوان
Dorfstraße, 25
نوع
بانتهاوس
موعد الانتهاء
IV ربع, 2021
المميزات
موقعك
- جهة الغرب
المميزات
- شرفة
- سطح
- مفروشة
المرافق الخارجية
- موقف السيارات















