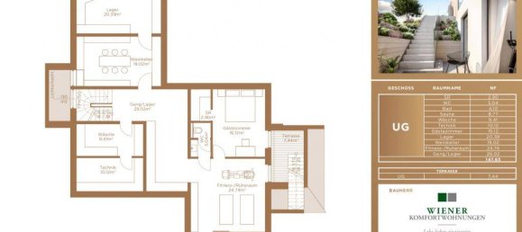
6غرفة قطعة أرض في Eichgraben, Austria رقم 66309
$ 320 621
$ 524 لكلّ متر مربّع؛
6
غرف
3
الحمامات
612
غرف المعيشة, م2
Eichgraben, Austria
الإعدادات
غرف
6
الحمامات
3
غرف المعيشة, م2
612
ID
66309
نوع
قطعة أرض
مساحة الأرض, م2
612
المميزات
المميزات
- سطح
المرافق الداخلية
- مرآب
المرافق الخارجية
- موقف السيارات
- حديقة





















