4 غرف نوم منزل في Polling in Tirol, Austria رقم 70866
$ 1 828 164
$ 5 164 لكلّ متر مربّع؛
11
غرف
4
غرف نوم
2
الحمامات
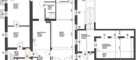
354
غرف المعيشة, م2
Polling in Tirol, Austria
الإعدادات
غرف
11
غرف نوم
4
الحمامات
2
غرف المعيشة, م2
354
ID
70866
نوع
منزل
مساحة الأرض, م2
702
موعد الانتهاء
IV ربع, 1983
المميزات
المميزات
- شرفة
- سطح
- مفروشة
المرافق الخارجية
- موقف السيارات
- حديقة










































