3 غرف نوم منزل في Bad Kleinkirchheim, Austria رقم 96513
$ 1 162 458
$ 7 132 لكلّ متر مربّع؛
10.04.2025
$ 1 115 490
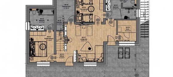
5
غرف
3
غرف نوم
3
الحمامات
163
غرف المعيشة, م2
Bad Kleinkirchheim, Austria
الإعدادات
غرف
5
غرف نوم
3
الحمامات
3
غرف المعيشة, م2
163
ID
96513
نوع
منزل
مساحة الأرض, م2
847
موعد الانتهاء
IV ربع, 2024
المميزات
المميزات
- شرفة
- سطح


















