3 غرف نوم منزل في Romilly-sur-Seine, France رقم 67504
$ 189 223
$ 1 564 لكلّ متر مربّع؛
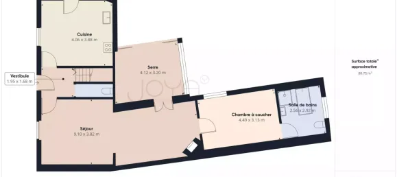
6
غرف
3
غرف نوم
2
الحمامات
121
غرف المعيشة, م2
Romilly-sur-Seine, France
الإعدادات
غرف
6
غرف نوم
3
الحمامات
2
غرف المعيشة, م2
121
ID
67504
نوع
منزل
مساحة الأرض, م2
818
المميزات
المميزات
- شرفة
المرافق الخارجية
- حديقة




















