5غرفة منزل في Saarland, Germany رقم 10150
$ 403 450
$ 3 177 لكلّ متر مربّع؛
5
غرف
1
الحمامات
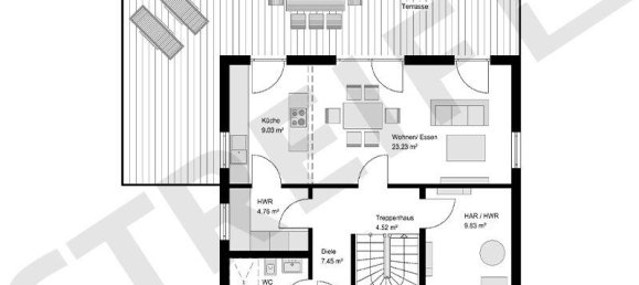
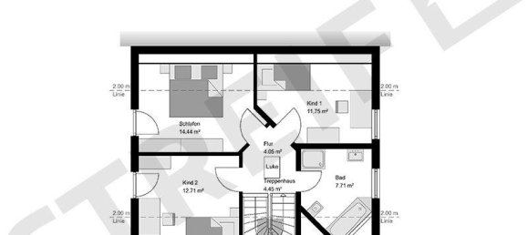
127
غرف المعيشة, م2
Saarland, Germany
الإعدادات
غرف
5
الحمامات
1
غرف المعيشة, م2
127
ID
10150
العنوان
Heitz Lortzingstraße
نوع
منزل
مساحة الأرض, م2
380
موعد الانتهاء
IV ربع, 2025
المميزات
المميزات
- سطح
المرافق الداخلية
- مرآب
المرافق الخارجية
- موقف السيارات
















