2 غرف نوم منزل في Plon, Germany رقم 225207
$ 686 878
$ 5 539 لكلّ متر مربّع؛
4
غرف
2
غرف نوم
1
الحمامات
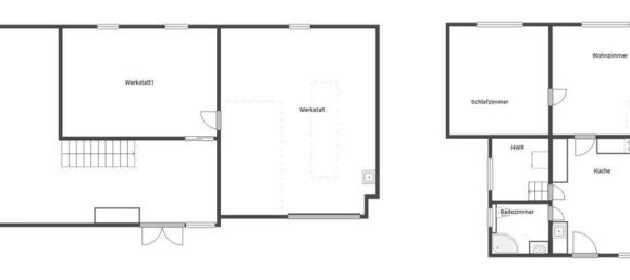
124
غرف المعيشة, م2
Plon, Germany
الإعدادات
غرف
4
غرف نوم
2
الحمامات
1
غرف المعيشة, م2
124
ID
225207
نوع
منزل
مساحة الأرض, م2
6497
موعد الانتهاء
IV ربع, 1800
المميزات
المميزات
- سطح
المرافق الداخلية
- مرآب
المرافق الخارجية
- موقف السيارات
- حديقة




















