4 غرف نوم منزل في Emsland, Germany رقم 245411
$ 404 306
$ 3 287 لكلّ متر مربّع؛
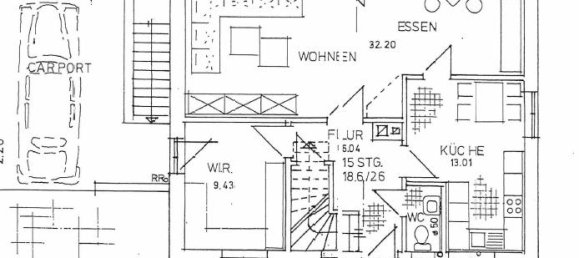
5
غرف
4
غرف نوم
1
الحمامات
123
غرف المعيشة, م2
Emsland, Germany
الإعدادات
غرف
5
غرف نوم
4
الحمامات
1
غرف المعيشة, م2
123
ID
245411
نوع
منزل
مساحة الأرض, م2
585
موعد الانتهاء
IV ربع, 1990
المميزات
المرافق الداخلية
- غرفة تخزين
- مرآب
المرافق الخارجية
- موقف السيارات
- حديقة














