4 غرف نوم منزل في Ammerland, Germany رقم 269051
$ 515 724
$ 4 298 لكلّ متر مربّع؛
5
غرف
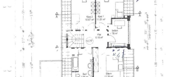
4
غرف نوم
1
الحمامات
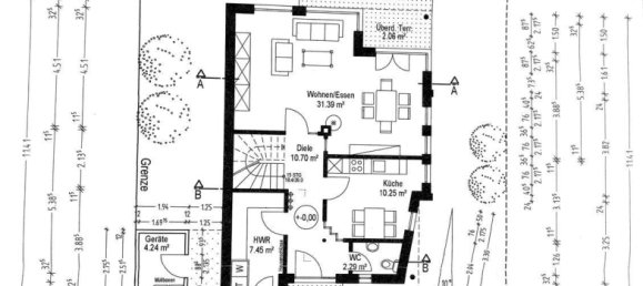
120
غرف المعيشة, م2
Ammerland, Germany
الإعدادات
غرف
5
غرف نوم
4
الحمامات
1
غرف المعيشة, م2
120
ID
269051
نوع
منزل
مساحة الأرض, م2
293
موعد الانتهاء
IV ربع, 2005
المميزات
المميزات
- سطح
المرافق الخارجية
- حديقة





















