4 غرف نوم منزل في Schleswig-Flensburg, Germany رقم 282951
$ 673 153
$ 4 429 لكلّ متر مربّع؛
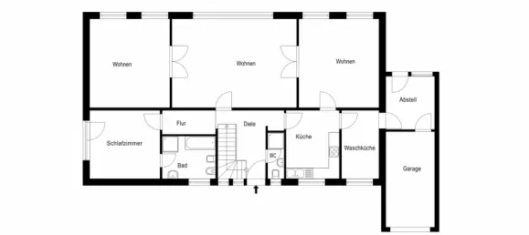
6
غرف
4
غرف نوم
3
الحمامات
152
غرف المعيشة, م2
Schleswig-Flensburg, Germany
الإعدادات
غرف
6
غرف نوم
4
الحمامات
3
غرف المعيشة, م2
152
ID
282951
نوع
منزل
مساحة الأرض, م2
757
موعد الانتهاء
IV ربع, 1985
المميزات
المميزات
- سطح
المرافق الداخلية
- غرفة تخزين
- مرآب
المرافق الخارجية
- موقف السيارات
- حديقة































