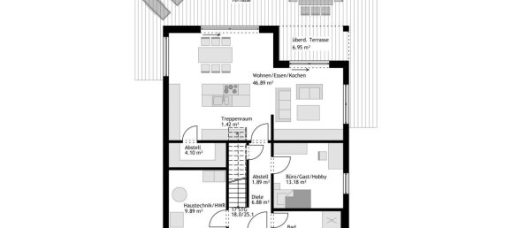
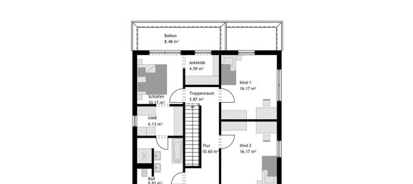
4 غرف نوم فيلا في Harburg, Germany رقم 310188
$ 1 051 620
$ 5 477 لكلّ متر مربّع؛
5
غرف
4
غرف نوم
1
الحمامات
192
غرف المعيشة, م2
Harburg, Germany
الإعدادات
غرف
5
غرف نوم
4
الحمامات
1
غرف المعيشة, م2
192
ID
310188
نوع
فيلا
مساحة الأرض, م2
879
المميزات
المميزات
- شرفة
المرافق الخارجية
- حديقة










