2غرفة شقة في Neustadt an der Aisch, Germany رقم 59462
$ 256 383
$ 3 716 لكلّ متر مربّع؛
2
غرف
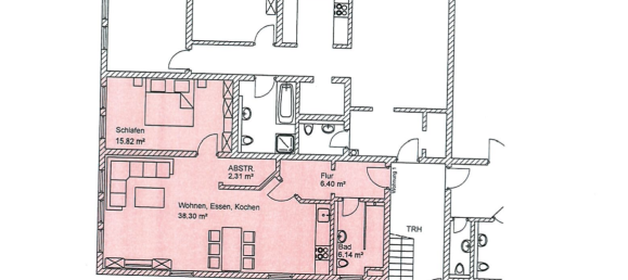
69
غرف المعيشة, م2
Neustadt an der Aisch, Germany
الإعدادات
غرف
2
غرف المعيشة, م2
69
ID
59462
نوع
شقة
موعد الانتهاء
IV ربع, 1987
المميزات
المرافق الداخلية
- غرفة تخزين
المرافق الخارجية
- موقف السيارات




