4غرفة تاون هاوس في Baden-Wurttemberg, Germany رقم 64925
$ 175 815
$ 1 628 لكلّ متر مربّع؛
4
غرف
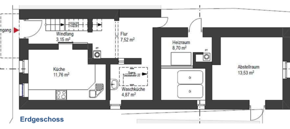
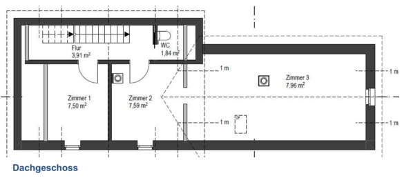
108
غرف المعيشة, م2
Baden-Wurttemberg, Germany
الإعدادات
غرف
4
غرف المعيشة, م2
108
ID
64925
نوع
تاون هاوس
مساحة الأرض, م2
330
موعد الانتهاء
IV ربع, 1960
المميزات
المميزات
- سطح
المرافق الخارجية
- موقف السيارات
- حديقة













PlanetHome Group GmbH