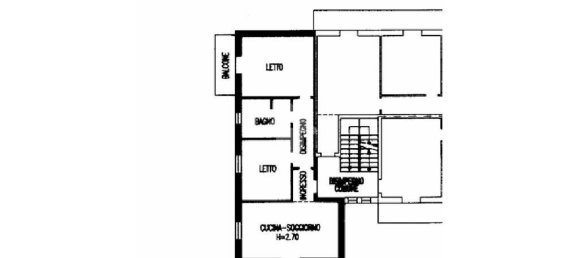
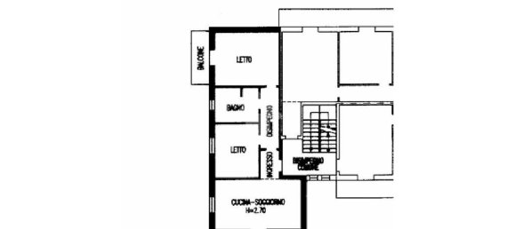
3 غرف نوم شقة في Pegognaga, Italy رقم 362226
$ 128 108
$ 1 334 لكلّ متر مربّع؛
3
غرف نوم
1
الحمامات
96
غرف المعيشة, م2
Pegognaga, Italy
الإعدادات
غرف نوم
3
الحمامات
1
غرف المعيشة, م2
96
ID
362226
العنوان
strada Sacca
نوع
شقة
المميزات
المميزات
- شرفة
المرافق الداخلية
- مرآب
المرافق الخارجية
- موقف السيارات
- حديقة











