1 غرف نوم شقة في Basque Autonomous Community, Spain رقم 151217
$ 669 921
$ 7 881 لكلّ متر مربّع؛
14.08.2025
$ 646 415
1
غرف نوم
1
الحمامات
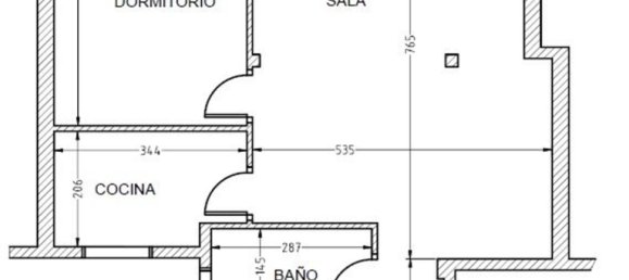
85
غرف المعيشة, م2
Basque Autonomous Community, Spain
الإعدادات
غرف نوم
1
الحمامات
1
غرف المعيشة, م2
85
ID
151217
العنوان
calle Easo, 67
نوع
شقة
موعد الانتهاء
IV ربع, 1905
المميزات
موقعك
- جهة الجنوب
المميزات
- سطح
المرافق الداخلية
- مصعد






