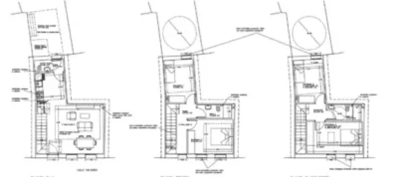
4 غرف نوم تاون هاوس في Chartered Community of Navarre, Spain رقم 158333
$ 252 002
$ 2 520 لكلّ متر مربّع؛
4
غرف نوم
3
الحمامات
100
غرف المعيشة, م2
Chartered Community of Navarre, Spain
الإعدادات
غرف نوم
4
الحمامات
3
غرف المعيشة, م2
100
ID
158333
العنوان
calle Valverde, 6
نوع
تاون هاوس
المميزات
المميزات
- شرفة
- سطح





































Rusol Prime
GR Sunshine Properties