Beschreibung der Immobilie
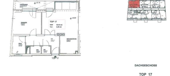
Eigentumswohnungen in Hollabrunn "Provisionsfreie" Helle und ruhige Terrassenwohnung.2 Zimmer 50,45 m² + Terrasse 6,28 m ² + Kellerabteil.Vorzimmer - großes Wohnzimmer mit offenen Bereich für eine Kücheund Zugang zur Terrasse - Zimmer mit Zugang zur Terrasse - Badezimmer mitWanne, Handwaschbecken, WM-Anschluss - WC - Abstellraum.Kaufpreis € 160.900,-- + Tiefgaragenplatz € 10.000,-- = Gesamt € 170.900,--Thermofenster Holz/Alu - Fernwärme - Waschküche - Fahrradraum.Perfekte Wohnlage nähe hauptplatz, Einkaufsmöglichkeiten - gute Verkehrsanbindung usw.Für nähere Informationen und Besichtigungen steht Ihnen Herr Stubenvoll gerne unter[Telefonnummer entfernt] zur Verfügung.Infrastruktur / EntfernungenGesundheitArzt
2-Zimmer Wohnung in Hollabrunn, Austria, Nr. 117169
$ 187 368
$ 3 747 pro m²
2
Zimmer
1
Badezimmer
50
Wohnfläche, m²
Hollabrunn, Austria
Parameter
Zimmer
2
Badezimmer
1
Wohnfläche, m²
50
ID
117169
Adresse
Schmiedgasse, 27
Art
Wohnung
Übergabetermin
IV Gegend, 2009
Besonderheiten
Besonderheiten
- Terrasse
Interne Infrastruktur
- Keller
- Fahrstuhl
- Garage
Externe Infrastruktur
- Parkplatz
Statistics Hollabrunn
$ 13 975
Price per m²
N/A
Quality of Life Index
92
Cost of living Index
Parameter
[:second_city:]
Hollabrunn
Unterschied
Monthly Rent Cost
1-Room Apartment
$ 1 398
2-Room Apartment
$ 1 165
Apartment Purchase Price per m²
In the City Center
$ 13 975
Outside the City Center
$ 11 646
Kriminalitätsindex
N/A
Lebenshaltungskosten Und Mietspiegel
65
Kaufkraftindex
178
Immobilien Preis-Einkommen-Verhältnis
11
Sicherheitsindex
N/A
Verkehr CO₂ Index
N/A
Verkehr Ineffizienz Index
N/A
Mietindex
32
Gesundheitsindex
N/A
Lebensmittelindex
120
Schadstoffindex
34
Verkehr Pendeln Zeitindex
N/A
Restaurant Preisindex
77
Klimaindex
87
Lebenshaltungskosten Index
92
Lebensqualität Index
N/A
Verkehrsindex
N/A
Restaurants
Mahlzeit, preiswertes Restaurant
$ 9.32
Mahlzeit für 2 Personen, Mittelklasse-Restaurant, Drei-Gänge-Menü
$ 69.88
McMeal bei McDonalds (oder gleichwertige kombinierte Mahlzeit)
$ 22.13
Hausbier (0,5 Liter drapiert)
$ 11.65
Importiertes Bier (0,33 Liter Flasche)
$ 11.65
Cola / Pepsi (0,33 Liter Flasche)
$ 3.49
Wasser (0,33 Liter Flasche)
$ 2.33
Cappuccino (reguläre)
$ 8.15
Märkte
Milch (normal), (1 Liter)
$ 2.33
Laib frisches Weißbrot (500g)
$ 4.66
Eier (normal) (12)
$ 4.05
Lokaler Käse (1 kg)
$ 45.42
Wasser (1,5 Liter Flasche)
$ 1.16
Flasche Wein (Mittelklasse)
$ 4.66
Hausbier (0,5 Liter Flasche)
$ 2.33
Importiertes Bier (0,33 Liter Flasche)
$ 3.49
Zigaretten 20er Pack (Marlboro)
$ 9.32
Äpfel (1 kg)
$ 2.33
Hähnchenfilets (1kg)
$ 55.90
Orangen (1kg)
$ 2.33
Kartoffel (1 kg)
$ 3.49
Eisbergsalat (1 Kopf)
$ 2.33
Reis (weiß), (1kg)
$ 1.16
Tomaten (1kg)
$ 2.33
Banane (1kg)
$ 2.33
Zwiebel (1kg)
$ 2.33
Rindfleisch Rund (1kg) (oder Gleichwertiges Hinterbein Rotes Fleisch)
$ 40.76
Transport
One-Way-Ticket (Nahverkehr)
$ 3.49
Monatskarte (regulärer Preis)
$ 57.07
Benzin (1 liter)
$ 2.33
Volkswagen Golf 1.4 90 KW Trendline (Oder einen Gleichwertigen, Neuen Auto)
$ 23 292
Taxi-Start (Normaler Tarif)
$ 5.82
Taxi 1km, (Normaler Tarif)
$ 2.33
Taxi 1 Stunde Warten (Normaler Tarif)
$ 34.94
Toyota Corolla Limousine 1,6 l 97kW Komfort (Oder einen Gleichwertigen, Neuen Auto)
$ 25 621
Dienstprogramme (monatlich)
Basic (Strom, Heizung, Kühlung, Wasser, Müll) für 85m2 Wohnung
$ 254
Internet (60 Mbps oder Mehr, Unbegrenzte Daten, Kabel/ADSL)
$ 23.29
Mobile Phone Monthly Plan with Calls and 10GB+ Data
$ 23.29
Gehälter und Finanzierung
Durchschnittliches Monatliches Nettoeinkommen (Nach Steuern)
$ 5 938
Hypothekenzinssatz in Prozent ( % ), Jährlich, seit 20 Jahren Fester Zinssatz
2%
Sport und Freizeit
Fitness-Club, Monatliche Gebühr für 1 Erwachsener
$ 34.94
Tennisplatz Mieten (1 Stunde am Wochenende)
$ 23.29
Kino, Internationale Freigabe, 1 Sitz
$ 8.15
Kleidung und Schuhe
1 Paar Jeans (Levis 501 Oder Ähnlich)
$ 57.07
1 Sommerkleid in einer Filiale (Zara, H&M,...)
$ 33.77
1 Paar Nike Laufschuhe (Mid-Range)
$ 68.71
1 Paar Männer Leder Business Schuhe
$ 80.36
Kinderbetreuung



















