Beschreibung der Immobilie
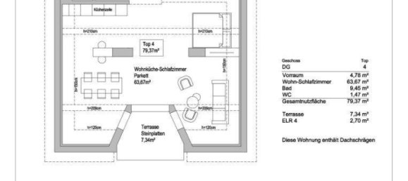
Offene Küche, Dusche. Zum Verkauf gelangt ein freundlicher und gut geschnittener Loft in einer ruhigen und grünen Wohngegend am Rand vom Stadtzentrum St. Pölten. Die Wohnung liegt im Dachgeschoss (2. OG ohne Aufzug), das Haus selbst besteht aus lediglich 4 Wohneinheiten. Hierbei handelt es sich um eine 1-Zimmer Wohnung mit einer Terrasse. Das Haus wurde generalsaniert und wird über eine moderne Luftwärmepumpe und eine Fussbodenheizung beheizt. ZUR WOHNUNG: Man betritt die Wohnung vom lichtdurchfluteten Stiegenhaus und befindet sich im Vorraum der Wohnung, in welchem ausreichend Platz für eine Garderobe und Staufläche ist. Vom Vorraum aus gelangt man ins Herzstück der Wohnung, den Wohnbereich. Mit seinen rund 79,3 m², den integrierten Säulen, den Dachfenstern und der vorgelagerten Terrasse lädt er wahrlich zum Verweilen ein. Durch gekonnte Raumaufteilung entsteht hier sowohl ein toller und großzügiger Wohn-Essbereich, als auch ein räumlich leicht abgegrenzter Schlaf-Bereich, der sehr gut nutzbar ist. Im Wohn-Essbereich selbst befinden sich sämtliche Anschlüsse für Ihre neue Küche und zusätzlich noch genügend Platz, um es sich gemütlich einzurichten. Die vorgelagerte Terrasse mit ca. 7,30 m² bietet Ihnen die Möglichkeit, nicht nur im Freien Ihre Mahlzeiten einzunehmen sondern auch eine perfekte Relax-Oase zu gestalten. Das Tageslicht-Badezimmer betritt man vom Vorzimmer aus, ist mit neutralen grauen Fliesen ausgestattet und verfügt über eine Walk-In-Dusche, ein Waschbecken sowie über einen Waschmaschinenanschluss. Das Badezimmer misst ca. 9,4 m² und somit ist hier auch genügend Platz für einen Schrank bzw. ein Kästchen. Die separate Toilette samt kleinem Handwaschbecken befindet sich unmittelbar nebenan. Durch den großzügigen Schnitt der Wohnung fühlt sich die Wohnfläche weitaus größer an, als sie tatsächlich ist. Im Sommer hat man den Vorteil, dass auch hohe Temperaturen durch den Altbau-Charakter großteils "vor der Tür" bleiben, wobei zugleich die Wohnbereiche vor allem Vormittags enorm hell und sonnig sind. Alles in allem eine perfekte Wohnung für Singles und Paare, die die Sonne in Ihr Leben lassen wollen und das Leben in dieser gut geschnittenen ruhig gelegenen Loft-Wohnung genießen wollen. Eine tolle Anbindung an die Autobahn A1 (ca.10min) sowie auch Einkaufsmöglichkeiten stehen den Bewohnern in der Nähe zur Verfügung und sind mit dem Auto gut und schnell erreichbar. In das Stadtzentrum sind es ebenfalls etwa 10 Fahrminuten. Die Wohnung ist derzeit vermietet und kann mit laufenden Mietvertrag als Anlage gekauft werden. Der Mietvertrag läuft bis 14.09.2029, die derzeitige netto Miete beträgt 612,47 Euro. Mögliche Rendite: 3,02 % NETTO Kaufpreis: 243.000,00 Euro Vermittlungs-Provision vom Gesamtkaufpreis: 3% + 20 USt. Für weitere Fragen oder einen persönlichen Besichtigungstermin wenden Sie sich bitte an Frau Elly Wenzel unter Anbieter kontaktieren oder Anbieter kontaktieren. Wir weisen darauf hin, dass zwischen dem Vermittler und dem zu vermittelnden Dritten ein familiäres oder wirtschaftliches Naheverhältnis besteht. Der Vermittler ist als Doppelmakler tätig. Infrastruktur / Entfernungen Gesundheit Arzt






























