Beschreibung der Immobilie
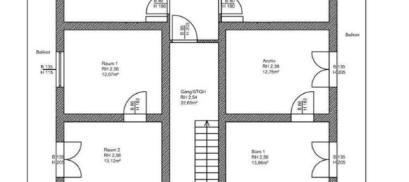
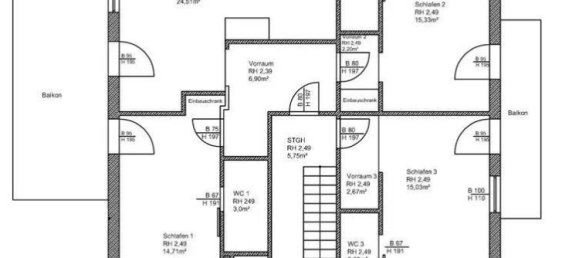
Beschreibung Interessante Gewerbeliegenschaft mit Eigentümer- und Personalwohnungen in Saalfelden! Die großzügige Liegenschaft befindet sich in guter Lage im Ortsteil Pfaffing in Saalfelden und ist mit einem Bestandsgebäude mit einer Nutzfläche von ca. 425 m² bebaut. Das Objekt ist flexibel gestaltbar, um auf individuelle Bedürfnisse Ihres Unternehmens einzugehen. Das Grundstück verfügt über eine Gesamtfläche von ca. 2215 m² von denen 1350 m² als gewerbliches Bauland genutzt werden können. Somit sollte eine Erweiterung der Bebauung nach Absprache mit der Gemeinde möglich sein. Mit einer Raumhöhe im Erdgeschoss von ca. 3 m bieten die Lagerhallen des Gebäudes vielfältige Nutzungsmöglichkeiten für jegliches Unternehmen. Im Obergeschoss befinden sich derzeit 2 Wohneinheiten mit je ca. 35 m². Eine Wohneinheit verfügt über ein Badezimmer mit Dusche und Wanne. Die andere Wohneinheit ist derzeit ohne Nassbereich. Eine Küche mit Essbereich ist zur gemeinsamen Nutzung vorhanden. Beide Einheiten haben Zugang zu einem Balkon. Weiters befinden sich ein großes Büro und 2 weitere Räume mit separaten Eingängen im Obergeschoss. Im Dachgeschoss befindet sich die ca. 71m² große Einliegerwohnung, die über 2 Schlafzimmer mit je einem Badezimmer en Suite, Wohnküche mit Einbauküche und Kachelofen, sowie Zugang zu einem Dachboden verfügt. Terrasse oder Balkon können von allen Zimmern erreicht werden. Das Dachgeschoss verfügt über ein weiteres Schlafzimmer mit Badezimmer, welches nicht zur Einliegerwohnung gehört. Zusätzliche Dachbodenräumlichkeiten können eventuell ausgebaut werden. Die Liegenschaft bietet eine einzigartige Gelegenheit für Unternehmer, die Arbeit und Leben an einem Ort vereinen möchten. Eckdaten/Keyfacts: • Gewerbeobjekt • Baujahr: 1993 • ca. 425 m² Wnfl. • 1350 m² gewerbliches Bauland • großzügige Gewerbefläche mit flexibler Nutzung • 2 Wohneinheiten + Büros im Obergeschoss • ca. 71 m² Einliegerwohnung mit 2 SZ und Wohnküche im DG • separates SZ mit Bad im DG • zusätzliche Dachbodenräumlichkeiten • Ölabscheider • LKW Waschplatz • Tankstelle Aufgrund der Nachweispflicht gegenüber dem Verkäufer können nur Anfragen mit vollständigen Angaben (Name, Telefonnummer, Adresse) beantwortet werden.





