Beschreibung der Immobilie
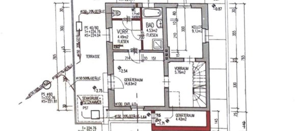
Einbauküche. Traumlage Satzberg: Wunderschönes 634m² Grundstück mit 113m² Einfamilienhaus zu verkaufen! Die angebotene Liegenschaft mit spektakulärem Fernblick befindet sich in wunderschöner Lage am Satzberg, direkt am Waldrand. Das Grundstück ist derzeit mit einem kleinen, gepflegten Einfamilienhaus aus den 1950er Jahren bebaut und verfügt über ca. 113m² Nutzfläche. Das Haus besteht aus 5 Zimmern, 1 Badezimmer, Küche, 2 WC´s und diversen kleinen Nebenräumen, Terrasse und Balkon,. Eine geringfügige Vergrößerung, z:B. durch Erweiterung des Dachausbaus wäre möglich. Alternativ bietet sich auch die Neubebauung des Grundstücks an. (Gemäß Flächenwidmung Bk WI, 6,5m ogk BB) Ausstattung: EFH mit älterer Einbauküche, modernisierte Hauszentralheizung (Öl), Fliesenbad mit Badewanne und Dusche, 2 WC´s,. Wunderschöne Ruhelage mit unverbaubarem Fernblick am Satzberg, direkt am Waldrand. Sanierung/Modernisierung des bestehenden Gebäudes oder Abbruch/Neubau sind mögliche Varianten für diese schöne Liegenschaft in gesuchter Lage am Satzberg. Öffentlich erreichbar ist diese Liegenschaft mit Autobuslinie 52B mit Anschluss nach Hütteldorf. Die schöne Lage in Nähe der Jubiläumswarte lädt zu sportlichen Aktivitäten oder Ausflügen ins Grüne ein. Die Liegenschaft ist sofort verfügbar und wird im Eigentum verkauft! Kaufpreis € 790.000,- Vermittlungsprovision 3% vom KP zuzügl. 20% USt. KONTAKT: Anfragen bitte nur per Email-Anfragefunktion! Keine telefonische Terminvergabe! Besuchen Sie für unsere weiteren Angebote bitte auch unsere Homepage: www.sitarz.at Der Käufer zahlt im Erfolgsfall an die Firma Sitarz & Partner Immobilien GmbH eine Maklerprovision in Höhe von 3% des Kaufpreises zzgl. 20% Ust. Die Provision errechnet sich aus dem beurkundeten Kaufpreis. Ausdrücklich vereinbart wird dieser Provisionsanspruch in gleicher Höhe auch für die in § 15 MaklerG vorgesehenen Fälle (Unterlassung eines notwendigen Rechtsaktes wider Treu und Glauben, Abschluss eines zweckgleichen Geschäftes, Abschluss mit einem Dritten aufgrund der Weitergabe der Abschlussmöglichkeit, Ausübung eines Vorkaufs-, Wiederkaufs- oder Eintrittsrechtes). Wir halten fest, dass Ihnen dieses Objekt erstmals durch unsere Tätigkeit als Immobilienmakler bekannt wurde. Falls Ihnen dieses Objekt bereits als verkauf- oder vermietbar bekannt ist, ersuchen wir innerhalb von 3 Werktagen um Ihre schriftliche Nachricht, ansonsten gilt die Provisionsregelung als vereinbart. Bei den Größen und Ertragsangaben handelt es sich um die von Abgeber/in (Eigentümer/in bzw. Hausverwaltung) zur Verfügung gestellten Informationen. Die Angaben wurden von uns kontrolliert, eine Gewähr für die Richtigkeit, Vollständigkeit und Letztstand müssen wir allerdings ausschließen. Es wird darauf hingewiesen, dass zwischen dem Abgeber und dem Immobilienmakler ein wirtschaftliches bzw. familiäres Nahverhältnis besteht und der Immobilienmakler auch für diesen tätig ist (Doppelmakler). Der Vermittler ist als Doppelmakler tätig. Infrastruktur / Entfernungen Gesundheit Arzt





















