Beschreibung der Immobilie
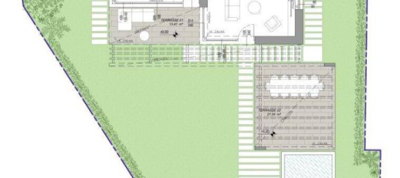
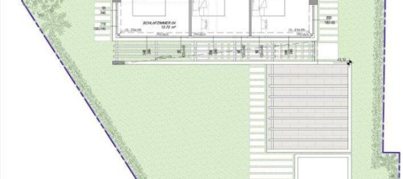
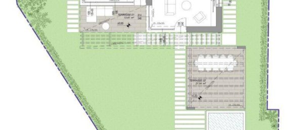
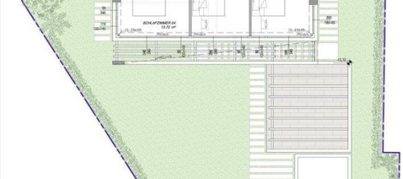
Das Highlight der Immobilie ist die bereits vorhandene Baubewilligung, sowie die vorliegenden Einreichpläne für die Errichtung einer modernen 5-Zimmer Villa mit Pool, Sauna, hauseigener Garage, Fitnessraum und einem vollwertigen Wohnkeller. Das angebotene Grundstück besticht durch seine Lage in einer idyllischen grünen Wohngegend in Perchtoldsdorf und zeitgleich durch seine Nähe zu Wien und der damit verbundenen perfekten Infrastruktur. Innerhalb weniger Gehminuten erreichen sie den Bahnhof sowie eine Bushaltestelle, die eine optimale Anbindung a den öffentlichen Nahverkehr bieten. Ebenso befindet sich der Autobahnanschluss in unmittelbarer Nähe und ermöglicht Ihnen somit eine optimale Erreichbarkeit. Die angebotene Liegenschaft ist also der perfekte Standort für Familien und Paare, die eine naturnahe Umgebung suchen und dem Stadtlärm entkommen wollen, jedoch gleichzeitig die Infrastruktur und andere Annehmlichkeiten des Stadtlebens schätzen! In der näheren Umgebung finden Sie alles, was Sie für den täglichen Bedarf benötigen. Einkaufsmöglichkeiten, Ärzte, Schulen und Cafès sind in wenigen Minuten zu erreichen. Kaufpreis: Der Kaufpreis beträgt 699.000,-- Euro. Bei erfolgreichem Geschäftsabschluss fällt eine Provision von 3% vom Kaufpreis zzgl. 20% USt. an. Einkaufsmöglichkeiten: Supermarkt EUROSPAR ca. 650m Einkaufszentrum ca. 4.1km (SC 17 Shopping-Center) Bäckerei ca. 2,2km Verkehrsanbindung: Bahnhof Perchtoldsdorf ca. 900m S2, S3, S4, 903-W, R3, REX1 260, 62A, 66A, 1, 257 Perchtoldsdorf Freizeitzentrum (Plättenstraße) ca. 600m 257, 258 Perchtoldsdorf Marktplatz ca. 900m 260, 257, 258, 259 Wien: ca. 30 Min. Autobahnanschluss Bildungseinrichtungen: Schule ca. 1,5km (Volkshochschule Perchtoldsdorf) BG/BRG Perchtoldsdorf ca. 1,6km Kindergarten ca. 1,2km Freizeit: Freizeitzentrum Perchtoldsdorf ca. 600m Perchtoldsdorf Tennisklub ca. 2.4km Restaurants in der Nähe: Karl Wirt ca. 2.1km Gerne steht Ihnen Frau Elina Strautmane für weitere Fragen bzw. flexibel gestaltbare Besichtigungstermine unter Anbieter kontaktieren zur Verfügung. www.ringsmuth-immobilien.at Wir weisen ausdrücklich auf unser wirtschaftliches Naheverhältnis mit dem Abgeber/der Abgeberin und auf unsere Vermittlungstätigkeit als Doppelmakler hin. Irrtum und Änderungen vorbehalten! Hinweis gemäß Energieausweisvorlagegesetz: Ein Energieausweis wurde vom Eigentümer bzw. Verkäufer, nach unserer Aufklärung über die generell geltende Vorlagepflicht, sowie Aufforderung zu seiner Erstellung noch nicht vorgelegt. Daher gilt zumindest eine dem Alter und der Art des Gebäudes entsprechende Gesamtenergieeffizienz als vereinbart. Wir übernehmen keinerlei Gewähr oder Haftung für die tatsächliche Energieeffizienz der angebotenen Immobilie. Infrastruktur / Entfernungen Gesundheit Arzt





















