Beschreibung der Immobilie
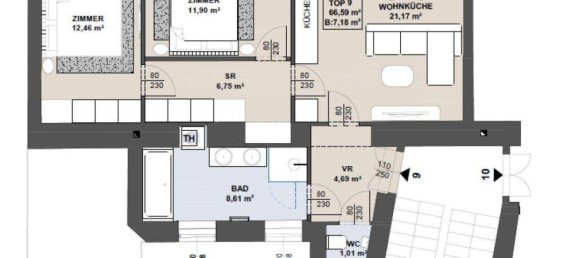
Offene Küche, Badewanne, Dusche, Fenster. Personenaufzug. Im Falle der Notwendigkeit einer Fremdfinanzierung Ihrer Wunschimmobilie ermittelt unser Wohnbau-Finanzierungsexperte gerne die optimale Finanzierungslösung und findet das passende Zins- und Konditionsangebot für Sie. Er vergleicht die aktuellen Angebote aller relevanten Banken und Bausparkassen. Der Angebotsvergleich kann aus einem Portfolio von über 120 Banken erfolgen. Das Erstgespräch ist für Sie kostenfrei und unverbindlich, gerne auch bei Ihnen vor Ort. So sparen Sie Ihre wertvolle Zeit und erhalten eine professionelle und unabhängige Finanzierungslösung vom Spezialisten. Sprechen Sie uns wegen eines Termins gerne an! Zum Verkauf gelangt eine moderne 3-Zimmer Wohnung im 5. Wiener Gemeindebezirk Die Liegenschaft befindet sich im 1. Stock und erstreckt sich über eine Fläche von ca. 67 m². Die Wohnung teilt sich in einen Vorraum, eine Wohnküche, 2 Zimmer, 1 Badezimmer und eine separate Toilette auf. Das Objekt überzeugt mit edlem Parkettboden, neuen Türen, moderner Smart-Home-Technologie und stilvollen Fliesen in Marmoroptik in den Nassbereichen. In den nächsten 6 Monaten wird außerdem ein Aufzug auf Kosten des Eigentümers installiert. Sie betreten die Wohnung und befinden sich im etwa 5 m² großen Vorraum. Gleich links vom Eingang befindet sich das WC. Daneben befindet sich das etwa 9 m² große Badezimmer mit Badewanne, Dusche und Doppelwaschbecken. Auf der rechten Seite des Eingangs kommt man in die ca. 21 m² große Wohnküche, welche direkten Zugang zum ca. 7 m² großen Balkon bietet. Durch die Wohnküche erlangt man Zugang zu einem Vorraum, von welchem man beide Schlafzimmer separat erreicht. Die Lage und Infrastruktur der Wohnung ist als sehr gut zu bewerten. In unmittelbarer Nähe befinden sich diverse Geschäfte des täglichen Lebens (Supermarkt, Kiosk etc.). Ebenso sind mehrere Restaurants fußläufig erreichbar. Die Anbindung an den öffentlichen Verkehr ist durch die U4 sowie die Autobuslinien 12A, 13A und 59A gewährleistet. Für genauere Informationen zur Infrastruktur, fordern Sie bitte unser Exposé an. Gerne lassen wir Ihnen bei ernsthaftem Interesse - vor Kaufanbotlegung - weitere vertraulichen Dokumente zu dieser Liegenschaft zukommen, welche nicht veröffentlicht werden dürfen. Überzeugen Sie sich selbst von diesem überaus attraktiven Objekt. Für Besichtigungen und nähere Informationen stehen wir Ihnen gerne zur Verfügung! Mag. Viola Wasmuth national - Tel: Anbieter kontaktieren international - Tel: Anbieter kontaktieren e-mail: Anbieter kontaktieren Wir weisen darauf hin, dass zwischen dem Vermittler und dem zu vermittelnden Dritten ein familiäres oder wirtschaftliches Naheverhältnis besteht. Der Vermittler ist als Doppelmakler tätig. Infrastruktur / Entfernungen Gesundheit Arzt








