Beschreibung der Immobilie
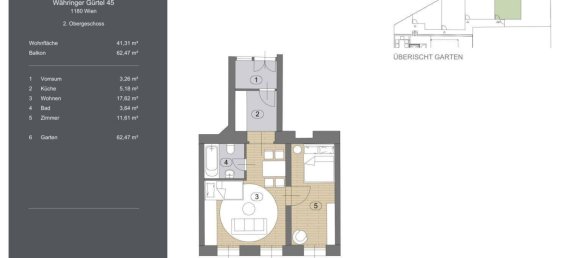
Einbauküche, Vollmöbliert, Badewanne, Gartennutzung. Personenaufzug. In einem klassischen Altbauhaus aus ca.1883 mit schöner gegliederter Fassade und einem parkähnlichem Innenhof stehen mehrere Wohnungen zum Verkauf. Das Dachgeschoß wurde bereits ca. 1991 ausgebaut und ein Lift eingebaut welcher bis zur 3. Etage führt. Das Wohnhaus liegt in einer, bei vielen beliebten Wohngegend zwischen Volksoper Schubertpark und Kreuzgasse quasi gegenüber vom AKH. Die Warmwasseraufbereitung und Heizung in den Wohnungen erfolgt mittels Gasetagenheizung. Für den großteil der Wohnungen gibt es bereits eine gültige Baugenehmigung zur Errichtung von großzügigen hofseitigen Balkonen. Die Wohnungen bieten viele Möglichkeiten zur Verwendung, sei es als Haupt- oder Zweitwohnsitz, für die klassische oder für die sogenannte Kurzzeitvermietung auf Airbnb oder auch als Büro, Ordination oder Ihre eigene Praxis. Sie können hier für Ihre Kaufentscheidung die gewünschte Verwendung vorab deklarieren und es werden alle Möglichkeiten geprüft diesen auch zu erfüllen. Hier gehts zu allen noch verfügbaren WOHNUNGEN: WÄHRINGER GÜRTEL 45 Diese sehr gut aufgeteilte Altbau 2 Zimmer Wohnung mit ca. 41,31m² und ca. 62,47m² Eigengarten im Innenhof wurde liebevoll eingerichtet und gelangt ab sofort zum Verkauf. Die gepflegte Wohnung befindet sich im 2. Stock mit Lift. Wohnzimmer mit Auszieh-Couch, Einzelbett und Essplatz, separates Schlafzimmer, eine separate feine Gang-Küche mit Küchenzeile und Geräten machen diese Wohnung durch die Möblierung sofort benutzbar sowohl für die Verwendung als Apartment zur Kurzzeitvermietung (Airbnb) oder für alle die gleich selbst einziehen möchten. Der entzückende Eigengarten befindet sich im Innenhof des Hauses und ist nicht direkt von der Wohnung begehbar. Käufern für die permanente Kurzzeitvermietung (AIRBNB) wird nach behördlicher Absprache eine entsprechende baubehördliche Widmung für die Immobilie zugesichert. INFOS ZUR WOHNUNG WOHNNUTZFLÄCHE: ca. 41,31m²ZIMMER: 2GARTEN: ca. 62,47m² KELLERABTEIL: 1GESCHOSS: 2. Stock mit LiftMehr Details zur Aufteilung entnehmen Sie bitte aus dem Verkaufsplan. HIGHLIGHTS: Eigengarten ca. 62,47m² Toller begrünter InnenhofU6 Michelbeuern AKH nur 100 Meter entferntGepfleger ZustandGuter GrundrissKurzzeitvermietung - Airbnb - möglichGang-Küche mit GerätenSofort bezugsfertig - komplett möbliertBadewanneKaufpreis € 250.000,- Betriebskosten inkl. Rücklage: € 189,20 PROVISION: 3% zzgl. 20% Ust vom Kaufpreis Vertragserrichterin ist vom Verkäufer vorgegeben: Frau Mag. Alina Regal, Kosten: 1,5% zzgl. Ust und Barauslagen vom Kaufpreis, + 0,25% bei Fremdfinanzierung In Entsprechung des FAGG (Fern- und Auswärtsgeschäfte-Gesetz) und des VRUG (Verbraucherrechte-Richtlinie-Umsetzungsgesetz) ist es uns leider nur mehr möglich Termine nach Erhalt einer schriftliche Anfrage mit vollständigen Kontaktabgaben (Kontaktformular) zu vereinbaren, dies gilt ebenso für die Herausgabe relevanter Informationen wie z.B. der Lage. Sehr gerne sind wir auf diesem Wege bereit, uns um sämtliche Anliegen rasch und kompetent zu kümmern. In Entsprechung des KschG wird auf eine Doppelmaklertätigkeit und auf ein wirtschaftliches Naheverhältnis hingewiesen.Besuchen Sie auch unsere Homepage WWW.RIWOG.AT mit weiteren aktuellen TOP-Objekten! RIWOG - Real Estate Management GmbH Börsegasse 12, 1010 Wien www.riwog.atWir weisen darauf hin, dass zwischen dem Vermittler und dem zu vermittelnden Dritten ein familiäres oder wirtschaftliches Naheverhältnis besteht. Der Vermittler ist als Doppelmakler tätig. Infrastruktur / Entfernungen Gesundheit Arzt
















RIWOG Real Estate