Beschreibung der Immobilie
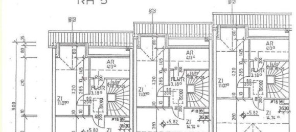
Offene Küche, Badewanne, Fenster, Kamin. GEPFLEGTES REIHENHAUS MIT GARTEN UND 5 ZIMMER Die Immobilie wurde im Jahr 1995 errichtet und befindet sich in Eisenstadt, der charmanten Landeshauptstadt des Burgenlandes. Dieses attraktive Reihenhaus bietet Ihnen nicht nur eine großzügige Wohnfläche von 111,85 m², sondern auch ein perfektes Umfeld für Familien und Paare, die das Leben in einer lebendigen Stadt mit einer hohen Lebensqualität schätzen. Das Reihenhaus erstreckt sich über 3 Etagen mit 5 lichtdurchfluteten Zimmern, die Ihnen zahlreiche Möglichkeiten zur individuellen Gestaltung und Einrichtung bieten. Das Erdgeschoß beherbergt das Wohnzimmer mit Blick in den Garten, die Küche, einen Vorraum und eine Toilette. Im 1. Stock befinden sich 2 Schlafzimmer und das Badezimmer. Das Obergeschoß verfügt über 2 weitere Schlafzimmer und einen Schrankraum. Der offene Wohnbereich mit angrenzender Küche und Blick in den Garten lädt zum Verweilen und geselligem Beisammensein ein. Beheizt wird die Immobilie mittels Strom bzw. einem Kachelofen im Wohnzimmer, welcher an kalten Tagen für wohlige Wärme und eine angenehme Stimmung sorgt. Die gepflegte Ausstattung der Immobilie umfasst Fliesen und Laminatböden, die nicht nur optisch ansprechend sind, sondern auch pflegeleicht. Das helle und freundliche Badezimmer verfügt über eine Badewanne und ein WC. Die Fenster sind 2-fach verglast und mit Außenrollos ausgestattet. Ein besonderes Highlight dieser Immobilie ist der eigene kleine Garten mit einer Größe von ca. 40 m², der Ihnen die Möglichkeit bietet, im Freien zu relaxen, zu gärtnern oder einfach nur die Natur zu genießen. Der Stellplatz direkt vor Ihrer Eingangstüre sorgt dafür, dass Ihr Fahrzeug stets sicher untergebracht ist. Das Reihenhaus verfügt weiters über einen ca. 39 m² großen Keller in welchem neben 2 Räumen auch ein Technikraum mit Warmwasserboiler und Waschmaschinenanschluss untergebracht sind. Die Lage ist ideal für Familien: Schulen und Kindergärten befinden sich in unmittelbarer Nähe, was den Alltag erheblich erleichtert. Zudem ist die Verkehrsanbindung durch Busverbindungen hervorragend. Mit einem Kaufpreis von 329.000 € ist dieses Reihenhaus nicht nur ein ideales Zuhause, sondern auch eine wertvolle Investition in Ihre Zukunft. Nutzen Sie die Gelegenheit, in einem der schönsten Bundesländer Österreichs zu wohnen, umgeben von einer freundlichen Nachbarschaft und einer Vielzahl an Freizeitmöglichkeiten. Lassen Sie sich diese Chance nicht entgehen und vereinbaren Sie einen Besichtigungstermin. Erleben Sie selbst, was dieses Reihenhaus in Eisenstadt zu bieten hat – Ihr neues Zuhause wartet auf Sie! Für Rückfragen stehe ich Ihnen gerne unter meiner E-mail Adresse Anbieter kontaktieren zur Verfügung. Für den Erhalt eines Exposes benötige ich Ihren Vor- und Zunamen, Ihre Wohnadresse und eine Telefonnummer! Der Vermittler ist als Doppelmakler tätig. Infrastruktur / Entfernungen Gesundheit Arzt














