Beschreibung der Immobilie
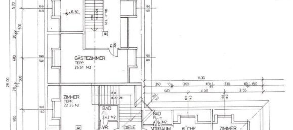
Einbauküche, Teilmöbliert, Bar, Kantine, Badewanne, Dusche, Pissoir, Fenster, Kamin, Gartennutzung, Sauna, Sporteinrichtungen, Swimmingpool, Wäschetrockenraum, Wellnessbereich. Sehr interessantes Anwesen mit ca. 700m² Wohn-/Nutzfläche auf ca. 3600m² Grund. Man findet auf diesem außergewöhnlichen Anwesen mehrere Möglichkeiten zur Nutzung vor. Einerseits ist die Eigennutzung zum Wohnen gegeben, anderseits ist unsere Liegenschaft auch sehr gut als Investitionsobjekt mit Vermietung- und Ausbaupotential geeignet. Außerdem befindet sich im Gebäude ein ehemaliges voll ausgestattetes Kaffeerestaurant mit ca. 260 m², bestehend aus Gastraum, Saal, Küche, Lager und Toiletten. Der historische Weinkeller wurde vom Heiligenkreuzer Orden vor etwa 300 Jahren erbaut und besteht aus Natursteinmauern mit sehr schönem Tonnengewölbe. Außerdem befinden sich auf dem Grundstück ein eigener Tennisplatz, Wellnessbereich mit Indoor-Schwimmhalle, Fitnessstudio und eine Garage Die ca. 236m² große Maisonette-Wohnung mit großzügiger Terrasse und herrlichem Blick auf das Leithagebirge sowie direktem Zugang zu Tennisplatz und Garten befindet sich in einem eigenen Trakt des Gebäudes. Durch einen separaten Eingang erreichbar sind 8 weitere Wohnungen in den Größen zw. 17m² und 53m². Der historische Weinkeller befindet sich in einem guten Zustand. Im weitläufigen Garten befinden sich ein Biotop und ein Brunnen. Die Liegenschaft liegt in strategisch guter Lage für Projektentwickler – auf dem Grundstück hat man zusätzliche Ausbaumöglichkeiten von ca. 650 m². 1994 wurde das Anwesen hochwertig ausgebaut sowie der Altbestand aufwendig generalsaniert. Im Erdgeschoss befindet sich das ehemalige Kaffeerestaurant. Dieses besteht aus historischem Vorraum mit Tonnengewölbe, 2 Gasträumen, Küche, Sanitär- und Lagerräumen und einem Festsaal der ebenso über die Einfahrt zugänglich ist. Weiters sind im EG zwei Büroräume, drei Lagerräume sowie der Ölheiz- und Tankraum vorhanden. Im Obergeschoss ist die große Maisonette-Wohnung gelegen, die sich auch über das Dachgeschoss erstreckt. Zudem gibt es 6 kleine und 2 weitere etwas größere Wohnungen im Dachgeschoß. Der Dachraum über dem Spa-Bereich mit ca. 165m² ist nicht ausgebaut, somit kann weiterer Wohnraum geschaffen werden. Der Keller wurde trockengelegt und saniert, ohne den historischen Charakter zu verlieren. Die Kellerräumlichkeiten bestehen aus Weinlagern sowie einem großen und einem kleinen Verkostungsraum. Hochwertig ausgestattet, bildet er den idealen Rahmen für Ihre Feiern. Der Garten wurde liebevoll angelegt, uneinsichtig und somit völlig ungestört können Sie die Naturteiche genießen. Vom Garten gelangt man auch auf den Tennisplatz. Im hinteren Teil des Gartens befindet sich die große Garage, die zusätzlichen Lagerraum und Abstellflächen bietet. Kaisersteinbruch liegt am Fuße des Leithagebirges zwischen Bruck an der Leitha, Neusiedl am See und Mannersdorf. Die Ostautobahn A4, auf der man in ca. 35 Minuten nach Wien sowie die A6 über die man in ca. 40 Minuten nach Bratislava gelangt, sind 9 km von Kaisersteinbruch entfernt. Von Bruck an der Leitha aus hat man eine hervorragende Zugverbindung nach Wien. Die Fahrzeit vom Bahnhof Bruck an der Leitha nach Wien Hauptbahnhof beträgt ca. 30 Minuten. Einkaufs- und Unterhaltungsmöglichkeiten bietet das nur 17 Kilometer entfernte Designer Outlet Parndorf. Hier gibt es eine Vielzahl an hochwertigen Designershops, ein Kino,Restaurants sowie Cafés. Das Leithagebirge mit zahlreichen schönen Wander- und Radwegen liegt nur 150 m entfernt. Eine weitere schöne Ausflugsmöglichkeit bietet das Natur- und Wassersportparadies Neusiedler See. Das nächstgelegene Seebad inklusive Segelhafen ist nur ca. 10 Minuten befindet sich in Breitenbrunn. Für weitere Fragen oder die Vereinbarung eines Besichtigungstermins steht Ihnen Herr Michael Pinzolits unter Anbieter kontaktieren gerne zur Verfügung. Entsprechend dem bestehenden Geschäftsgebrauch ist LIM-BROKER GmbH (im Folgenden „LB“) als Doppelmakler tätig. Es wird hiermit ausdrücklich darauf hingewiesen, dass LB mit dem zu vermittelnden Dritten in einem familiären bzw. wirtschaftlichen Naheverhältnis steht. Die Angaben zu dem angebotenen Objekt erfolgen mit der Sorgfalt eines ordentlichen Immobilienmaklers; für die Richtigkeit der Angaben durch Dritte, insbesondere den Verfügungsberechtigten des Objektes, wird jedoch keinerlei Gewähr geleistet. Es wird hiermit weiters ausdrücklich festgehalten, dass durch Anfrage zu einem Objekt zwischen dem anfragenden Interessenten (im Folgenden „Auftraggeber“) und LB ein Maklervertrag zustande kommt und vereinbarungsgemäß im Falle eines Abschlusses mit dem Auftraggeber oder einem von diesem namhaft gemachten Dritten LB ein Honoraranspruch gegenüber dem Auftraggeber (lt. Honorarverordnung für Immobilienmakler, BGBl. 262 und 297/1996) in Höhe von 3% des Kaufpreises bzw. 2 (bei Wohnungen) oder 3 (bei sonstigen Objekten, insbesondere Gewerbeobjekten) Bruttomonatsmieten zzgl. 20% USt. entsteht. Festgehalten wird ferner, dass vereinbarungsgemäß bei LB ein Provisionsanspruch in dieser Höhe dem Auftraggeber gegenüber auch dann entsteht, wenn gemäß § 15 MaklerG (i) das im Maklervertrag bezeichnete Geschäft wider Treu und Glauben nur deshalb nicht zustande kommt, weil der Auftraggeber entgegen dem bisherigen Verhandlungsverlauf einen für das Zustandekommen des Geschäfts erforderlichen Rechtsakt ohne beachtenswerten Grund unterlassen; oder (ii) mit dem vermittelten Dritten ein anderes als ein zweckgleichwertiges Geschäft zustande kommt, sofern die Vermittlung des Geschäfts in den Tätigkeitsbereich von LB fällt; oder (iii) das im Exposé bzw vertraglich bezeichnete Geschäft nicht mit dem Auftraggeber, sondern mit einer anderen Person zustande kommt, weil der Auftraggeber dieser die ihm von LB bekanntgegebene Möglichkeit zum Abschluss mitgeteilt hat oder das Geschäft nicht mit dem vermittelten Dritten, sondern mit einer anderen Person zustande kommt, weil der vermittelte Dritte dieser die Geschäftsgelegenheit bekanntgegeben hat, oder (iv) das Geschäft nicht mit dem vermittelten Dritten zustande kommt, weil ein gesetzliches oder ein vertragliches Vorkaufs-, Wiederkaufs- oder Eintrittsrecht ausgeübt wird. Es gelten die allgemeinen Geschäftsbedingungen von LB (abrufbar unter: http://www.lim-broker.at/de/agb), auf die hiermit ausdrücklich hingewiesen wird. Hinweis gemäß Energieausweisvorlagegesetz: Ein Energieausweis wurde vom Eigentümer bzw. Verkäufer, nach unserer Aufklärung über die generell geltende Vorlagepflicht, sowie Aufforderung zu seiner Erstellung noch nicht vorgelegt. Daher gilt zumindest eine dem Alter und der Art des Gebäudes entsprechende Gesamtenergieeffizienz als vereinbart. Wir übernehmen keinerlei Gewähr oder Haftung für die tatsächliche Energieeffizienz der angebotenen Immobilie. Wir weisen darauf hin, dass zwischen dem Vermittler und dem zu vermittelnden Dritten ein familiäres oder wirtschaftliches Naheverhältnis besteht. Der Vermittler ist als Doppelmakler tätig. Infrastruktur / Entfernungen Gesundheit Arzt
















































