Beschreibung der Immobilie
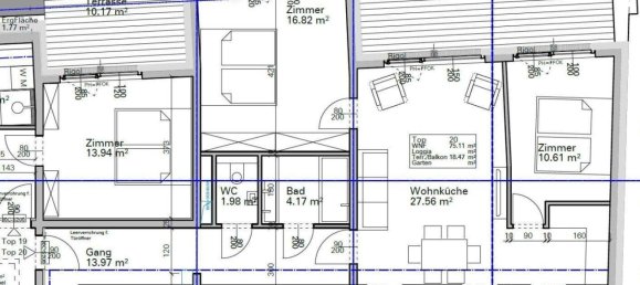
Einbauküche, Offene Küche, Badewanne, Klimatisiert. Personenaufzug. Im Falle der Notwendigkeit einer Fremdfinanzierung Ihrer Wunschimmobilie ermittelt unser Wohnbau-Finanzierungsexperte gerne die optimale Finanzierungslösung und findet das passende Zins- und Konditionsangebot für Sie. Er vergleicht die aktuellen Angebote aller relevanten Banken und Bausparkassen. Der Angebotsvergleich kann aus einem Portfolio von über 120 Banken erfolgen. Das Erstgespräch ist für Sie kostenfrei und unverbindlich, gerne auch bei Ihnen vor Ort. So sparen Sie Ihre wertvolle Zeit und erhalten eine professionelle und unabhängige Finanzierungslösung vom Spezialisten. Sprechen Sie uns wegen eines Termins gerne an! Zum Verkauf gelangt ein exklusives Wohnungspaket bestehend aus fünf modernen, lichtdurchfluteten Wohnungen im 11. Wiener Gemeindebezirk. Bei der Immobilie handelt es sich um einen 2022 fertiggestellten Neubau mit insgesamt 20 Wohneinheiten. Die fünf zu verkaufenden Wohnungen liegen im Erdgeschoss, 1. und 2. Obergeschoss sowie im Dachgeschoss des Hauses und erstrecken sich insgesamt über eine Wohnfläche von ca. 338 m² und ca. 54 m² Freiflächen in Form von Loggia, Balkon oder Terrasse. Sie teilen sich wie folgt auf: 2-Zimmer Wohnung mit Loggia, Wohnfläche ca. 75 m² im EG2-Zimmer Wohnung mit Loggia, Wohnfläche ca. 75 m² im 1. OG2-Zimmer Wohnung mit Loggia/Balkon, Wohnfläche ca. 61 m² im 2. OG2-Zimmer Wohnung mit zwei Terrassen, Wohnfläche ca. 53 m² im DG2-Zimmer Wohnung mit Terrasse, Wohnfläche ca. 75 m² im DGBei einem Quadratmeterpreis von 14€/m² ergibt sich ein jährlicher Nettomietertrag von ca. € 56.829,36. Dies entspricht einer Rendite von ca. 3,53 %. Das Haus verfügt über eine Wärmepumpe, eine Photovoltaikanlage sowie elektrisch bedienbare Außenrollos und Fußbodenheizung. Alle Wohnungen sind in den Haupträumen mit hochwertigem Fischgrätparkett ausgekleidet, in den Nassräumen sind moderne Fliesen verlegt. Jeder Einheit ist jeweils ein Kellerabteil zugeordnet, zudem besteht die Möglichkeit KFZ-Stellplätze in der hauseigenen Tiefgarage zu je 26.000,-€ zu erwerben. Die Lage der Immobilie kann als Gut bewertet werden. Innerhalb von wenigen Gehminuten erreichen Sie die nahegelegene S-Bahn-Station Kaiserebersdorf, über welche Sie mit der S7 in nur ca. 10 Minuten im Stadtzentrum sind. Zudem sind Sie mittels der Straßenbahnlinien 11 und 71 sowie der Buslinien 71A und 71B an den öffentlichen Verkehr angebunden. In direkter Umgebung befinden sich mehrere Geschäfte für den täglichen Bedarf. Gerne lassen wir Ihnen bei ernsthaftem Interesse - vor Kaufanbotlegung - weitere vertraulichen Dokumente zu dieser Liegenschaft zukommen, welche nicht veröffentlicht werden dürfen. Überzeugen Sie sich selbst von diesem überaus attraktiven Objekt. Für Besichtigungen und nähere Informationen stehen wir Ihnen gerne zur Verfügung! Herr Aleksandar Mihajlovic, MSc national - Tel: Anbieter kontaktieren international - Tel: Anbieter kontaktieren e-mail: Anbieter kontaktieren Wir weisen darauf hin, dass zwischen dem Vermittler und dem zu vermittelnden Dritten ein familiäres oder wirtschaftliches Naheverhältnis besteht. Der Vermittler ist als Doppelmakler tätig. Infrastruktur / Entfernungen Gesundheit Arzt


















