6-Zimmer Villa in Eichgraben, Austria, Nr. 202604
$ 877 753
$ 5 852 pro m²
6
Zimmer
2
Badezimmer
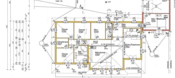
150
Wohnfläche, m²
Eichgraben, Austria
Parameter
Zimmer
6
Badezimmer
2
Wohnfläche, m²
150
ID
202604
Art
Villa
Landfläche, m²
1463
Übergabetermin
IV Gegend, 2010
Besonderheiten
Besonderheiten
- Balkon
- Terrasse
Interne Infrastruktur
- Keller
- Garage
Externe Infrastruktur
- Parkplatz
- Garten


















