Beschreibung der Immobilie
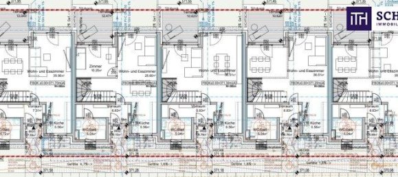
TOLLE CHANCE! Ihr Traumprojekt vor den Toren von Graz: Baureifes Grundstück für modernes Wohnen in idyllischer Lage! Zum Verkauf steht ein 1.661 m² großes Grundstück in einer idyllischen und dennoch zentralen Lage in der Nähe von St. Marein bei Graz. Dieses Grundstück ist ideal für ein Wohnbauprojekt, da bereits eine Einreichplanung für 5 Reihenhäuser mit einer Gesamtnutzfläche von 533,88 m² vorliegt. Der rechtskräftige Bebauungsplan ermöglicht es, das Projekt ohne Verzögerungen zu realisieren.Das Grundstück bietet ein hohes Potenzial für Investoren und Bauträger, die eine sofort umsetzbare Wohnbauentwicklung in einer attraktiven Wohnlage suchen.Projektbeschreibung:Die Einreichplanung sieht den Bau von 5 modernen Reihenhäusern vor, die durch eine ansprechende und zeitgemäße Architektur bestechen. Jedes Reihenhaus bietet einen komfortablen Grundriss mit hellen Wohnräumen und ausreichend Platz für Familien oder Paare. Die durchdachten Grundrisse lassen auch Spielraum für individuelle Gestaltungsmöglichkeiten, um den künftigen Bewohnern ein maßgeschneidertes Zuhause zu bieten.FactsGrundstücksgröße: 1.661 m²Einreichplanung: 5 Reihenhäuser mit insgesamt 533,88 m² WohnflächeBebauungsplan: Rechtskräftig und genehmigtLage: Nähe St. Marein bei Graz, naturnah und verkehrsgünstigParkplatz: 6 überdachte Parkplätze10 Highlights:Rechtskräftiger Bebauungsplan: Kein bürokratischer Aufwand mehrEinreichplanung abgeschlossen: Planung für 5 Reihenhäuser mit durchdachten Grundrissen bereits vorhanden.Großzügige Grundstücksfläche: Mit 1.661 m² ideal für eine kompakte, aber attraktive Wohnbebauung.Moderne Architektur: Geplante Reihenhäuser mit zeitgemäßer und ästhetischer Bauweise.Naturnahe Lage: Umgeben von viel Grün, ideal für Familien und Naturfreunde.Zentrale Anbindung: Nähe zu Graz und gute Erreichbarkeit der Autobahn und öffentlicher Verkehrsmittel.Hohe Nachfrage: Attraktive Wohngegend, die sowohl Familien als auch Investoren anspricht.Flexible Raumgestaltung: Reihenhäuser bieten Gestaltungsmöglichkeiten für individuelle Wohnkonzepte zwischen 105 -107m².Ruhige Wohnstraße: Abseits des Durchgangsverkehrs, aber dennoch zentral gelegen.Ideales Investment: Perfekt für Bauträger oder Investoren, die ein Projekt mit sofortiger Umsetzbarkeit suchen. Verpassen Sie nicht diese einzigartige Gelegenheit! Kontaktieren Sie uns noch heute, um mehr über dieses exklusive Grundstück nahe Graz zu erfahren. Wir freuen uns darauf, Ihnen alle Details zu präsentieren und einen persönlichen Besichtigungstermin für Sie zu organisieren!Worauf noch warten? Vereinbaren Sie noch heute eine Besichtigung oder eine persönliche Beratung mit uns!Sie wollen Ihre Immobilie verkaufen? Dann sind Sie bei uns goldrichtig!Wir sind gerne für Sie da und unterstützen Sie unverbindlich bei der Bewertung Ihrer Immobilie. Mit viel Sorgfalt stellen wir Ihnen alle wichtigen Informationen und Unterlagen zusammen, damit Sie die besten Entscheidungen treffen können.In Kooperation mit unserer SFI Vermögenstreuhand begleiten wir Sie bei der Verwirklichung Ihres Traumobjekts und unterstützen Sie beim nachhaltigen Vermögensaufbau. Mit unseren erfahrenen Experten sorgen wir dafür, dass Sie die besten Konditionen erhalten – damit Ihre Träume Wirklichkeit werden!http://www.schantl-ith.at in Kooperation mit www.sfi-invest.com Hinweis gemäß Energieausweisvorlagegesetz: Ein Energieausweis wurde vom Eigentümer bzw. Verkäufer, nach unserer Aufklärung über die generell geltende Vorlagepflicht, sowie Aufforderung zu seiner Erstellung noch nicht vorgelegt. Daher gilt zumindest eine dem Alter und der Art des Gebäudes entsprechende Gesamtenergieeffizienz als vereinbart. Wir übernehmen keinerlei Gewähr oder Haftung für die tatsächliche Energieeffizienz der angebotenen Immobilie.Wir weisen darauf hin, dass zwischen dem Vermittler und dem zu vermittelnden Dritten ein familiäres oder wirtschaftliches Naheverhältnis besteht.Der Vermittler ist als Doppelmakler tätig.Infrastruktur / EntfernungenGesundheitArzt







Schantl ITH Immobilientreuhand GmbH