5-Zimmer Stadthaus in Strasshof an der Nordbahn, Austria, Nr. 240261
$ 351 630
$ 3 197 pro m²
5
Zimmer
1
Badezimmer
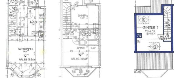
110
Wohnfläche, m²
Strasshof an der Nordbahn, Austria
Parameter
Zimmer
5
Badezimmer
1
Wohnfläche, m²
110
ID
240261
Art
Stadthaus
Übergabetermin
IV Gegend, 1994
Besonderheiten
Lage
- Richtung Süden
- Richtung Westen
Besonderheiten
- Terrasse
Externe Infrastruktur
- Garten























