Beschreibung der Immobilie
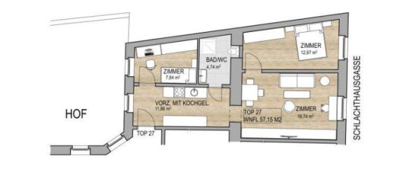
Diese renovierungsbedürftige Wohnung in der 2. Etage eines charmanten Wiener Gebäudes im 3. Bezirk bietet eine einmalige Gelegenheit für Bastler und Renovierungsbegeisterte. Auf 57m² finden Sie 2 geräumige Zimmer, ideal für Paare oder kleine Familien. Der Kaufpreis von 270.000 € macht diese Immobilie besonders attraktiv. Die Wohnung ist mit Fliesen und Laminat ausgestattet und verfügt über eine Gas-Zentralheizung, wobei die Einrichtung renovierungsbedürftig ist! Die offene Küche bietet viel Platz zum Kochen und Genießen, sobald sie adaptiert wurde. Das Badezimmer ist geräumig und bietet Platz für eine große Badewanne und lädt nach Abschluss der Arbeiten zum Entspannen ein. Dank der Nähe zur U-Bahn und weiteren Verkehrsanbindungen wie Bus, Straßenbahn und Bahnhof sind Sie bestens vernetzt. Auch der Autobahnanschluss ist um die Ecke. In der Umgebung finden Sie alle wichtigen Einrichtungen: Ärzte, Apotheken, Krankenhäuser, Schulen, Kindergärten, Universitäten, Supermärkte, Bäckereien und Einkaufszentren. Nutzen Sie diese Gelegenheit und gestalten Sie sich Ihren individuellen Wohntraum in Wien. Vereinbaren Sie noch heute einen Besichtigungstermin. Wir freuen uns auf Sie! Öffentliche Verkehrsmittel ---------------- Für eine unverbindliche Besichtigung: Wir freuen uns Ihnen das Objekt jederzeit persönlich vorzustellen zu dürfen. Kontaktieren Sie gerne Herr Philipp Schneider persönlich unter [Telefonnummer entfernt] sowie auch unter [E-Mail-Adresse entfernt]. Unser Büro erreichen Sie unter [E-Mail-Adresse entfernt] Nebenkosten: Grundbucheintragung: 1,1% d.KP. Grunderwerbssteuer: 3,5% d.KP. Maklerprovision: 3% d.KP. + 20% USt. Kaufvertragshonorar: 1,2% des Kaufpreises zzgl. Barauslagen und USt. | Die Errichtung und Durchführung des Kaufvertrages erfolgt durch die Kanzlei Tiefenthaler Gnesda Rechtsanwälte GmbH. Maklervereinbarung: Wir ersuchen um Verständnis, dass wir bei Anfragen zur Objektadresse, bzw. Besichtigungstermin aufgrund neuer gesetzlicher Bestimmungen Unterlagen erst dann zusenden können, wenn Sie vorab bestätigen, dass Sie unser sofortiges Tätigwerden wünschen und über Ihre Rücktrittsrechte aufgeklärt wurden. Sie bekommen nach Ihrer schriftlichen Anfrage mit vollständiger Angabe des Namens, Anschrift und Telefonnummer ein Email, in dem Sie diese Punkte bestätigen müssen. Haftungsausschluss: Wir weisen darauf hin, dass sämtliche Daten im vorliegenden Angebot sowie die von unserem Büro an Sie weitergegebenen Auskünfte, vom Eigentümer der Immobilie zur Verfügung gestellt wurden. Ebenso sind Informationen von Dritten (z.B. behördliche Informationen) eingeholt worden, auch für diese können wir unsererseits keinerlei Haftung für deren uneingeschränkte Richtigkeit übernehmen. Infrastruktur / Entfernungen





