Beschreibung der Immobilie
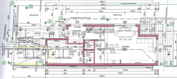
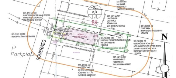
Perfekte Wohnlage in Brunn am Gebirge mit Baugenehmigung. Bauplatzgröße 420 m² (davon max. 126 m² Bebaubare Fläche) - 178 m² Wfl ( EG: 94 m² + OG: 84 m²) - Terrassen - Balkon - Garten - Garage - 1x PKW-Stellplatz im Freien. Traumhaftes Baugrundstück in der nähe von Einkaufmöglichkeiten, Golfplatz, Schulen, Ärzte usw.. Perfekte Anbindung an die Autobahn und nur 10 Minuten mit dem Auto nach Wien. Für Nähere Informationen und Besichtigungen steht Ihnen Herr Stubenvoll gerne unter Anbieter kontaktieren zur Verfügung. Infrastruktur / Entfernungen Gesundheit Arzt
4-Zimmer Grundstück in Brunn am Gebirge, Austria, Nr. 46440
$ 491 694
$ 2 762 pro m²
4
Zimmer
2
Badezimmer
178
Wohnfläche, m²
Brunn am Gebirge, Austria
Parameter
Zimmer
4
Badezimmer
2
Wohnfläche, m²
178
ID
46440
Adresse
Römerweg, 13
Art
Grundstück
Landfläche, m²
420
Besonderheiten
Besonderheiten
- Balkon
- Terrasse
Interne Infrastruktur
- Garage
Externe Infrastruktur
- Parkplatz
- Garten
Statistics Brunn am Gebirge
$ 11 688
Price per m²
N/A
Quality of Life Index
N/A
Cost of living Index
Parameter
[:second_city:]
Modling
Unterschied
Monthly Rent Cost
1-Room Apartment
$ 935
2-Room Apartment
$ 701
Apartment Purchase Price per m²
In the City Center
$ 11 688
Outside the City Center
$ 7 013
Kriminalitätsindex
N/A
Lebenshaltungskosten Und Mietspiegel
N/A
Kaufkraftindex
N/A
Immobilien Preis-Einkommen-Verhältnis
13
Sicherheitsindex
N/A
Verkehr CO₂ Index
N/A
Verkehr Ineffizienz Index
N/A
Mietindex
27
Gesundheitsindex
N/A
Lebensmittelindex
N/A
Schadstoffindex
34
Verkehr Pendeln Zeitindex
N/A
Restaurant Preisindex
N/A
Klimaindex
87
Lebenshaltungskosten Index
N/A
Lebensqualität Index
N/A
Verkehrsindex
N/A
Restaurants
Mahlzeit, preiswertes Restaurant
$ 29.22
Mahlzeit für 2 Personen, Mittelklasse-Restaurant, Drei-Gänge-Menü
$ 87.66
McMeal bei McDonalds (oder gleichwertige kombinierte Mahlzeit)
$ 14.03
Cola / Pepsi (0,33 Liter Flasche)
$ 1.75
Märkte
Milch (normal), (1 Liter)
$ 1.75
Laib frisches Weißbrot (500g)
$ 4.09
Eier (normal) (12)
$ 4.91
Lokaler Käse (1 kg)
$ 23.38
Reis (weiß), (1kg)
$ 2.34
Transport
One-Way-Ticket (Nahverkehr)
$ 4.68
Monatskarte (regulärer Preis)
$ 117
Benzin (1 liter)
$ 1.87
Volkswagen Golf 1.4 90 KW Trendline (Oder einen Gleichwertigen, Neuen Auto)
$ 29 221
Toyota Corolla Limousine 1,6 l 97kW Komfort (Oder einen Gleichwertigen, Neuen Auto)
$ 46 754
Dienstprogramme (monatlich)
Basic (Strom, Heizung, Kühlung, Wasser, Müll) für 85m2 Wohnung
$ 584
Internet (60 Mbps oder Mehr, Unbegrenzte Daten, Kabel/ADSL)
$ 23.38
Mobile Phone Monthly Plan with Calls and 10GB+ Data
$ 11.69
Gehälter und Finanzierung
Durchschnittliches Monatliches Nettoeinkommen (Nach Steuern)
$ 3 507
Hypothekenzinssatz in Prozent ( % ), Jährlich, seit 20 Jahren Fester Zinssatz
4%
Sport und Freizeit
Fitness-Club, Monatliche Gebühr für 1 Erwachsener
$ 46.75
Kino, Internationale Freigabe, 1 Sitz
$ 17.53
Kleidung und Schuhe
1 Paar Jeans (Levis 501 Oder Ähnlich)
$ 70.13
1 Sommerkleid in einer Filiale (Zara, H&M,...)
$ 117
1 Paar Nike Laufschuhe (Mid-Range)
$ 175
Kinderbetreuung











