Beschreibung der Immobilie
Dieses sehr gepflegte Reihenmittelhaus befindet sich in einer angenehmen Nachbarschaft in Bremen Blumenthal, einer ruhigen und familienfreundlichen Wohngegend.Die Lage bietet eine gute Infrastruktur, kurze Wege zu Einkaufsmöglichkeiten, Schulen und öffentlichen Verkehrsmitteln sowie eine entspannte Atmosphäre zum Wohlfühlen.
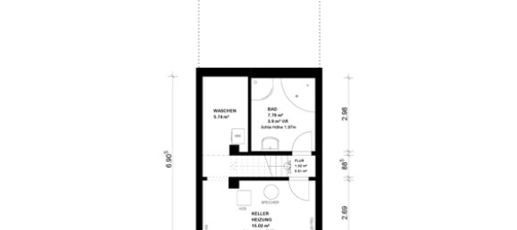
Das Raumangebot erstreckt sich über ca. 82 Quadratmeter Wohnfläche, verteilt auf vier Ebenen. Es bietet ein komfortables Zuhause in einer harmonischen Umgebung.
Zusammenfassung der Immobilie:
* 4 Zimmer
* Einbauküche
* 1 modernes Dusch- und Wannenbad mit Fenster
* Vollkeller
* große überdachte Sonnenterrasse
* pflegeleichtes Grundstück
* Installation Gastherme 2004
* Austausch der Fenster ca. 2018
* Dämmung der Außenfassade durch Einblasdämmung ca. 2017
* Rollläden vor den Fenstern
* Überdachte Terrasse mit Süd- Westausrichtung
* viel Stauraum im Keller und Dachgeschoss, Art: Bedarfsausweis
Gültig bis: 15.03.2035
Endenergiebedarf: 192,31 kWh/(m²*a)
Baujahr lt. Energieausweis: 1950
Baujahr Heizung: 2004
Gerne stehen wir Ihnen für weitere Informationen per E-Mail zur Verfügung., Diese Immobilie befindet sich im Stadtteil Blumenthal in Bremen, in einer ruhigen Wohngegend.
Hier befinden Sie sich in der Nähe von verschiedenen Einrichtungen wie Schulen, Einkaufsmöglichkeiten und Parks, was sie zu einem praktischen Wohnort macht. Die Straße ist gut an das öffentliche Verkehrsnetz angebunden, sodass die Anbindung an die Bremer Innenstadt und andere Stadtteile bequem ist.
Blumenthal ist ein Stadtteil im Norden von Bremen und hat vieles zu bieten.
Der Stadtteil Blumenthal zeichnet sich durch eine Mischung aus ländlichem Charme und städtischer Infrastruktur aus. Die Gegend ist geprägt von einer Vielzahl von Wohngebieten, die sowohl Einfamilienhäuser als auch Mehrfamilienhäuser umfassen.
Ein besonderes Merkmal von Blumenthal ist die Nähe zur Natur. Der Stadtteil bietet zahlreiche Grünflächen, Parks und Naherholungsgebiete, die Nähe zur Weser ist ideal für Spaziergänge, Radfahren oder einfach zum Entspannen. Die umliegenden Felder und Wiesen tragen zur ländlichen Atmosphäre bei und bieten einen schönen Kontrast zur urbanen Umgebung.
In Blumenthal gibt es auch eine gute Anbindung an die Bremer Innenstadt, sowohl mit dem Auto als auch mit öffentlichen Verkehrsmitteln. Die Infrastruktur ist gut ausgebaut, mit verschiedenen Einkaufsmöglichkeiten, Schulen und Freizeitangeboten, die den Bewohnern zur Verfügung stehen.
Kulturell hat Blumenthal ebenfalls einiges zu bieten. Es gibt lokale Veranstaltungen, Märkte und Feste, die das Gemeinschaftsgefühl stärken und die Nachbarschaft zusammenbringen.





















