Beschreibung der Immobilie
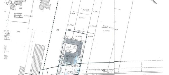
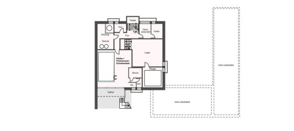
Zum Verkauf steht ein Wohn - und Gewerbeanwesen aus dem Jahre 1974. Rechteckig geschnittenes Grundstück; Grundstücksgröße 1.807 m². Das Gebäude wird vom Eigennutzer verkauft, es befindet sich in einem technisch hochwertigen und insgesamt sehr gepflegtem Zustand. Angaben aus dem Bebauungsplan: Grundflächenzahl 0,4, Geschoßflächenzahl 0,8, zwei Vollgeschosse, Mischgebiet. Bauabschnitt 1 Hauptgebäude: UG: Keller- und Lagerräume, eine Sauna, ein ehemaliges Schwimmbad und Zugang zu einer Terrasse. Das Schwimmbad ist momentan mit einer massiven Holzplatte bedeckt und dient als Fitnessbereich. Nutzfläche ca. 65 m², Fitnessbereich 60 m², Grundfläche Terrasse ca. 20 m². EG: Bürofläche, eine Ausstellungsfläche, eine Werkstatt sowie eine Einliegerwohnung mit zwei Zimmern, Küche, Bad, Terrasse. Nutzfläche ca. 61 m², Wohnfläche ca. 56m². Grundfläche Terrasse ca. 22 m². Die Terrassenfläche ist nicht anteilig in der Wohnfläche enthalten. Diese Wohnung ist zur Zeit vermietet. OG: 5-Zimmer-Wohnung mit Küche, Wohnzimmer, Essbereich, zwei Kinderzimmern, ein Bad, separates WC, Zugang zur Terrasse. Wohnfläche ca. 147 m², Terrassenfläche ca. 70 m². Die Terrassenfläche ist nicht anteilig in der Wohnfläche enthalten, Wohnfläche nach DIN ca. 165 m². Diese Wohnung wird nach dem Verkauf frei. Bauabschnitt 2: Doppelgarage neben dem Hauptgebäude mit Sozialräumen (Umkleideraum, Aufenthaltsraum, Waschraum, WC-Bereich), Nutzfläche ca. 36 m². Auf dem Dach befindet sich die Terrasse der OG-Wohnung. Terrassenfläche ca. 18 m². Die Terrassenfläche ist nicht anteilig in der Wohnfläche enthalten. Diese Flächen und die Doppelgarage werden nach dem Verkauf frei. Bauabschnitt 3: Lagerflächen Das Außenlager ist in Leichtbauweise erstellt und besteht aus einer Stahlkonstruktion mit Betonboden und Leichtbauwänden. Nutzfläche ca. 120 m². Das Dach besteht aus Welleternit. Die Gewerbeflächen werden nach dem Verkauf frei. 6 Pkw-Stellplätze im Freien, befestige Freifläche, Hoffläche. Angaben zum Energieausweis: BA, 102 kWh/(m²*a), ZH, Strom/Gas, Bj. 1974, D, 54 kg CO2-Äquivalent/(m²*a)



















