Beschreibung der Immobilie
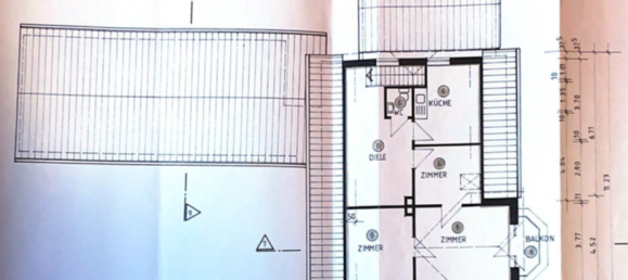
Objektbeschreibung Diese Immobilie lässt sich sowohl als großzügiges Einfamilienhaus nutzen und ist auch für Mehrgenerationenwohnen geeignet. Gestalten Sie die großen, freundlichen Räume nach Ihren Vorstellungen, oder investieren Sie in ein gut vermietbares Anlageobjekt. Beide Wohneinheiten sind durch 2 separate Eingänge voneinander getrennt. Die obere Wohnung mit einer modernen Einbauküche aus dem Jahre 2005 und einem Balkon erreichen Sie durch den vorderen Eingang (Haupteingang). Die untere Wohnung im Hochparterre mit großen Fenstern, einem Erker, einem Badezimmer und einem Gäste-WC, erreichen Sie sowohl durch den vorderen, als auch durch den hinteren Eingang. Den ruhigen Garten genießen Sie bei jedem Wetter in der großen Loggia, die zu jeder Jahreszeit das überdachte Grillen erlaubt. Die obere Wohnung ist zurzeit für 800,- pro Monat warm vermietet, die untere Wohnung steht seit kurzem leer und ist für ca. 1200.- € vermietbar. Objektbeschreibung -Hauptgebäude Baujahr 1920 -Anbau Baujahr 1974 -Garage -Carport -2 weitere Stellplätze auf dem Grundstück -Keller -Garten -Loggia -auch als Kapitalanlage geeignet Beispiel Kaufpreis 500.000€ Tilgung 2% Zinsen 4 % Rate 2.500€ Mieteinnahme bei Neuvermietung ca. 2.500€ gesamt / Monat - 30.000€ Jahresmiete Besichtigungstermine Sie wünschen weitere Informationen, eine Besichtigung oder ein ausführliches Exposé? Dann freuen wir uns auf Ihre Anfrage! Alle Angaben sind ohne Gewähr und basieren ausschließlich auf Informationen, die uns von unserem Auftraggeber übermittelt wurden und es wird keine Gewähr für Vollständigkeit, Richtigkeit und Aktualität dieser Angaben gegeben. Irrtum und Zwischenverkauf sind vorbehalten. Eine Besichtigung kann, nach Absprache, jederzeit erfolgen. Bitte beachten Sie unsere AGBs. Diese finden Sie auf unserer Homepage www.haus-grund-pinneberg-immobilien.de Stichworte Sonstiges: ISDN









