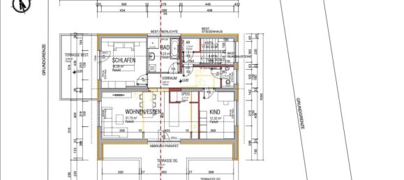
Apartamento de 3 habitaciónes en Wallern an der Trattnach, Austria No. 191108
$ 411 455
$ 5 018 por m²
3
Habitaciones
82
Espacio vital, m²
Wallern an der Trattnach, Austria
Parámetros
Habitaciones
3
Espacio vital, m²
82
ID
191108
Tipo
Apartamento
Características
Características
- Terraza
Instalaciones interiores
- Garaje
Instalaciones exteriores
- Aparcamiento
- Jardín
















