Adosado de 7 dormitorios en Innsbruck-Stadt, Austria No. 226025
$ 1 506 075
$ 9 472 por m²
9
Habitaciones
7
Dormitorios
3
Baños
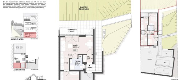
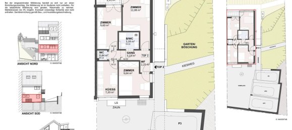
159
Espacio vital, m²
Innsbruck-Stadt, Austria
Parámetros
Habitaciones
9
Dormitorios
7
Baños
3
Espacio vital, m²
159
ID
226025
Dirección
Felseckstraße
Tipo
Adosado
Zona del terreno, m²
303
Características
Características
- Terraza
Instalaciones exteriores
- Jardín




