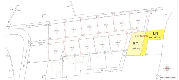
Terreno en Katsdorf, Austria 1563 m² No. 232927
$ 344 738
$ 221 por m²
1563
Espacio vital, m²
Katsdorf, Austria
Parámetros
Espacio vital, m²
1563
ID
232927
Tipo
Terreno
Zona del terreno, m²
869














