Apartamento de 2 habitaciónes en Deutsch-Wagram, Austria No. 254774
$ 408 589
$ 6 486 por m²
2
Habitaciones
1
Baños
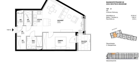
63
Espacio vital, m²
Deutsch-Wagram, Austria
Parámetros
Habitaciones
2
Baños
1
Espacio vital, m²
63
ID
254774
Tipo
Apartamento
Fecha de finalización
IV barrio, 2021
Características
Características
- Balcón
- Terraza
Instalaciones interiores
- Almacén
- Ascensor
- Garaje
Instalaciones exteriores
- Aparcamiento












Schantl ITH Immobilientreuhand GmbH