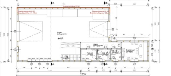
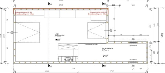
Almacén en Feldbach, Austria 250 m² No. 49987
$ 423 108
$ 1 692 por m²
250
Espacio vital, m²
Feldbach, Austria
Parámetros
Espacio vital, m²
250
ID
49987
Tipo
Almacén
Zona del terreno, m²
704
Fecha de finalización
IV barrio, 2021






