Ranim Zubideh
Aristo Developers
Maisonette de 2 dormitorios en Petridia E, Empa, Cyprus No. 17381
$ 256 652
$ 1 693 por m²
2
Dormitorios
2
Baños
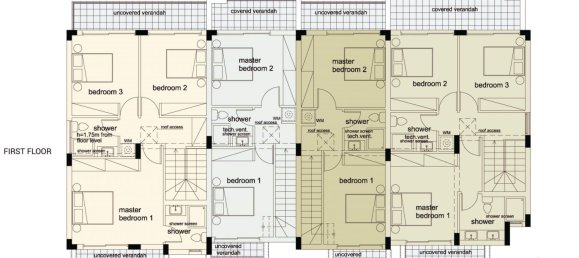
151.63
Espacio vital, m²
Petridia EEmpa, Cyprus
Ranim Zubideh
Aristo Developers
Parámetros
Dormitorios
2
Baños
2
Espacio vital, m²
151.63
ID
17381
Dirección
QCXG+679, Emba, Paphos 8250
Tipo
Maisonette
Tipo de veranda
Abierta y cubierta
Tipo de acceso
Público
Espacio de veranda, m²
20.35
Al mar
4 km
Al centro de la ciudad
4 km
Fecha de finalización
2023
Características
Ubicación
- Cerca de la parada de autobús
- Cerca de centros comerciales
- Cerca de los colegios
- Gran ubicación
- Junto al mar
- Cerca de restaurantes
- Cerca del Hospital
- Vista a la calle
- Vista hermosa
Características
- Balcón
- Terraza
Instalaciones interiores
- Aparcamiento privado
Instalaciones exteriores
- Zona verde ajardinada
- Jardín comunitario
- Aparcamiento
Statistics Empa
$ 3 343
Price per m²
183
Quality of Life Index
56
Cost of living Index
Parámetros
[:second_city:]
Paphos
Diferencia
Monthly Rent Cost
1-Room Apartment
$ 1 069
2-Room Apartment
$ 825
Apartment Purchase Price per m²
In the City Center
$ 3 343
Outside the City Center
$ 2 643
Índice de criminalidad
32
Índice del coste de la vida y del alquiler
44
Índice de poder adquisitivo
80
Relación entre el precio de la propiedad y los ingresos
8
Índice de seguridad
68
Índice CO₂ de tráfico
3952
Índice de ineficacia del tráfico
114
Índice de alquileres
29
Índice de asistencia sanitaria
71
Índice de comestibles
51
Índice de contaminación
30
Índice de tiempo de desplazamiento del tráfico
20
Índice de precios de los restaurantes
58
Índice de clima
97
Índice del coste de la vida
56
Índice de calidad de vida
183
Índice de tráfico
98
Restaurantes
Comida, Restaurante Económico
$ 17.39
Comida para 2 personas, restaurante de gama media, tres platos
$ 69.57
McMeal en McDonalds (o comida combinada equivalente)
$ 8.70
Cerveza nacional (0,5 litros de barril)
$ 3.60
Cerveza importada (botella de 0,33 litros)
$ 3.48
Coca-Cola/Pepsi (botella de 0,33 litros)
$ 2.10
Agua (botella de 0,33 litros)
$ 1.29
Capuchino (normal)
$ 3.76
Mercados
Leche (normal), (1 litro)
$ 1.86
Pan blanco fresco (500 g)
$ 1.45
Huevos (normales) (12)
$ 4.76
Queso local (1kg)
$ 16.37
Agua (botella de 1,5 litros)
$ 0.96
Botella de vino (de gama media)
$ 6.96
Cerveza nacional (botella de 0,5 litros)
$ 1.80
Cerveza de importación (botella de 0,33 litros)
$ 2.08
Paquete de 20 cigarrillos (Marlboro)
$ 5.80
Manzanas (1kg)
$ 2.88
Filetes de pollo (1 kg)
$ 8.79
Naranjas (1kg)
$ 2.21
Patatas (1kg)
$ 1.35
Lechuga (1 cabeza)
$ 0.64
Arroz (blanco), (1kg)
$ 2.49
Tomate (1kg)
$ 3.90
Plátano (1kg)
$ 1.68
Cebolla (1kg)
$ 1.15
Redondo de ternera (1kg) (o carne roja de pata trasera equivalente)
$ 13.14
Transporte
Billete de ida (transporte local)
$ 2.32
Abono mensual (precio normal)
$ 57.98
Gasolina (1 litro)
$ 1.61
Volkswagen Golf 1.4 90 KW Trendline (O coche nuevo equivalente)
$ 34 090
Taxi de salida (tarifa normal)
$ 8.70
Taxi 1km (Tarifa Normal)
$ 2.20
Taxi 1 hora de espera (tarifa normal)
$ 23.19
Toyota Corolla Sedan 1.6l 97kW Comfort (o coche nuevo equivalente)
$ 34 177
Servicios públicos (mensual)
Básico (Electricidad, Calefacción, Refrigeración, Agua, Basura) para Apartamento de 85m2
$ 189
Internet (60 Mbps o Más, Datos Ilimitados, Cable/ADSL)
$ 37.10
Mobile Phone Monthly Plan with Calls and 10GB+ Data
$ 17.39
Salarios y Financiación
Salario medio mensual neto (después de impuestos)
$ 1 942
Tipo de interés hipotecario en porcentajes (%), anual, para 20 años a tipo fijo
4%
Deportes y Ocio
Club de fitness, cuota mensual para 1 adulto
$ 70.54
Alquiler de pista de tenis (1 hora en fin de semana)
$ 22.03
Cine, estreno internacional, 1 asiento
$ 11.60
Ropa y calzado
1 Par de pantalones vaqueros (Levis 501 o similares)
$ 85.51
1 Vestido de verano en una cadena de tiendas (Zara, H&M, ...)
$ 55.08
1 Par de Zapatillas Nike para correr (de gama media)
$ 109
1 Par de zapatos de negocios de cuero para hombre
$ 107
Cuidado De Niños
Preescolar (o jardín de infancia), jornada completa, privado, mensual para 1 niño
$ 468
Escuela primaria internacional, anual para 1 niño
$ 7 856
Ranim Zubideh
Aristo Developers






Mercury Group
Mercury Group
Bezino Trading Ltd