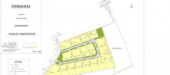
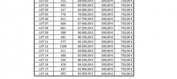
Terreno en Eringhem, France 511 m² No. 278248
$ 75 083
$ 147 por m²
511
Espacio vital, m²
Eringhem, France
Parámetros
Espacio vital, m²
511
ID
278248
Tipo
Terreno
Zona del terreno, m²
511
Características
Ubicación
- Orientación sur


