Apartamento de 3 dormitorios en Rhone, France No. 302759
$ 245 364
$ 2 530 por m²
4
Habitaciones
3
Dormitorios
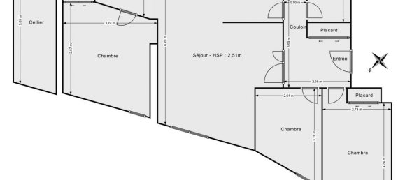
97
Espacio vital, m²
Rhone, France
Parámetros
Habitaciones
4
Dormitorios
3
Espacio vital, m²
97
ID
302759
Tipo
Apartamento
Características
Instalaciones interiores
- Garaje
Instalaciones exteriores
- Aparcamiento







iad France
Listanza Services Group