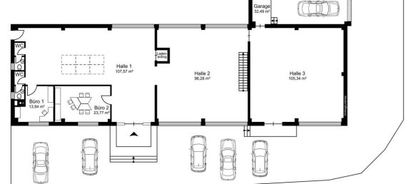
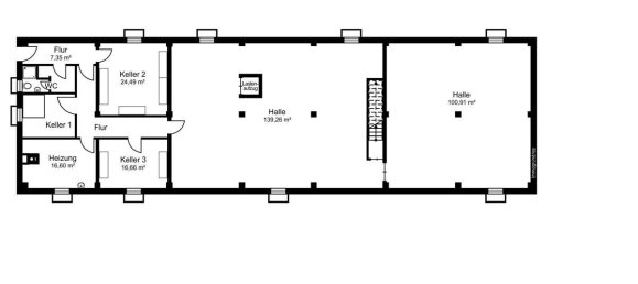
Propiedad comercial en Aichach-Friedberg, Germany 742 m² No. 149788
$ 1 465 125
$ 1 975 por m²
742
Espacio vital, m²
Aichach-Friedberg, Germany
Parámetros
Espacio vital, m²
742
ID
149788
Dirección
Ruppertstraße
Tipo
Propiedad comercial
Fecha de finalización
IV barrio, 1982
Características
Instalaciones interiores
- Garaje




















