Apartamento de 2 habitaciónes en Luneburg, Germany No. 323962
$ 281 304
$ 3 126 por m²
2
Habitaciones
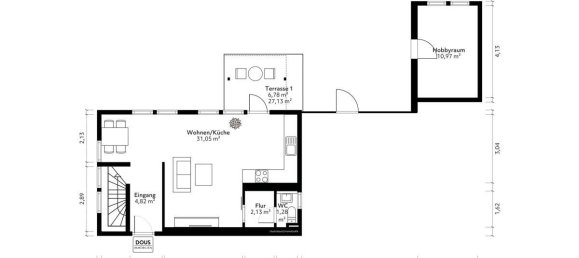
90
Espacio vital, m²
Luneburg, Germany
Parámetros
Habitaciones
2
Espacio vital, m²
90
ID
323962
Tipo
Apartamento
Fecha de finalización
IV barrio, 1975
Características
Características
- Balcón
- Terraza











